EasyManua.ls Logo

M Confort CF 2000 - Instalação

M Confort CF 2000
43 pages
Print Icon
To Next Page IconTo Next Page
To Next Page IconTo Next Page
To Previous Page IconTo Previous Page
To Previous Page IconTo Previous Page
Loading...
5. INSTALAÇÃO
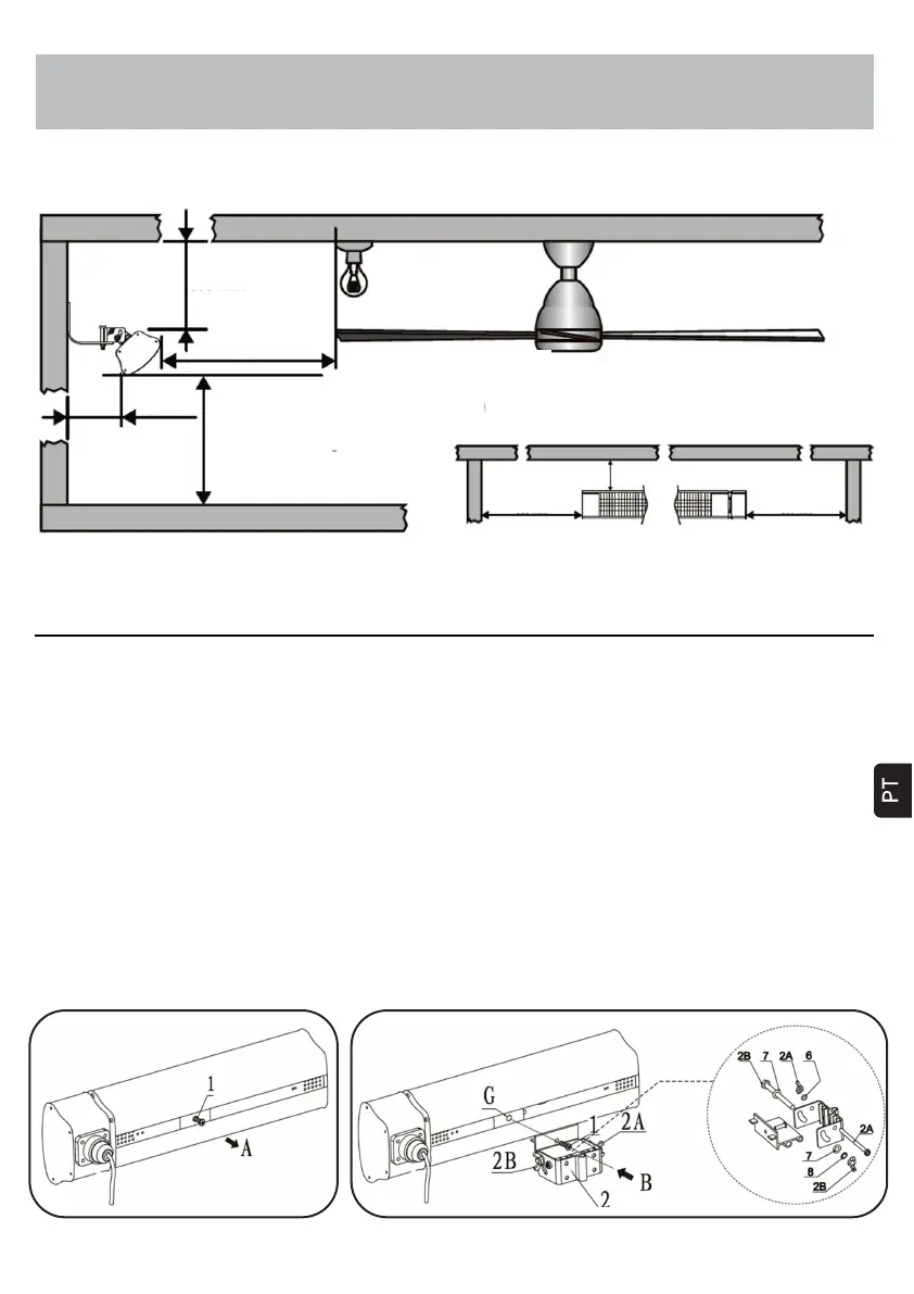
5.1 Distâncias de segurança necessárias para a instalação:
5.2 Lista de componentes:
Medidas em mm
ref
1
2
2A
2B
3
4
5
5A
6
7
8
Nome
Parafuso
Conjunto de âncora
Parafuso + Porca
Parafuso + Porca
Parafuso de expansão
Médio
Parafuso
Porca
Arruela
Arruela
Arruela elástica
Especificación
M6x16
Alumínio
M6x100+M6
M8x100+M8
M6x60
Aço
M8×60
M8
Ø6.2xØ14x1
Ø8.2xØ16x1
Ø8.2xØ11x1.5
Cantidad
1
1
1
1
2
1
1
1
1
3
1
Localização
No aquecedor
Na embalagem
Fixado no conjunto de suporte nº 2
Fixado no conjunto de suporte nº 2
Na embalagem
Na embalagem
Na embalagem
Fixado no nº 5 Parafuso M8 * 60
Fixado no parafuso nº 2A M6 * 100
Fixado no parafuso dos números 2B e 5
2 peças fixadas no parafuso nº 2B e 1 peça no parafuso 2A
1000 min. para superfícies (por exemplo, tabelas, etc).
1000 min. para pessoas ou animais.
1800 min até o solo.
600 min. 600 min.
300 min.
300 min.
300 min.
1500 min.
Ventiladores, luzes ou acessórios
NÃO DEVEM SER LOCALIZADOS
ABAIXO do aquecedor.
1500 min. a objetos inflamáveis,
como cortinas, etc.
5.3. Instalação:
36