EasyManua.ls Logo

MALTEC PT3800Wt - Parametry Techniczne

MALTEC PT3800Wt
Print Icon
To Next Page IconTo Next Page
To Next Page IconTo Next Page
To Previous Page IconTo Previous Page
To Previous Page IconTo Previous Page
Loading...
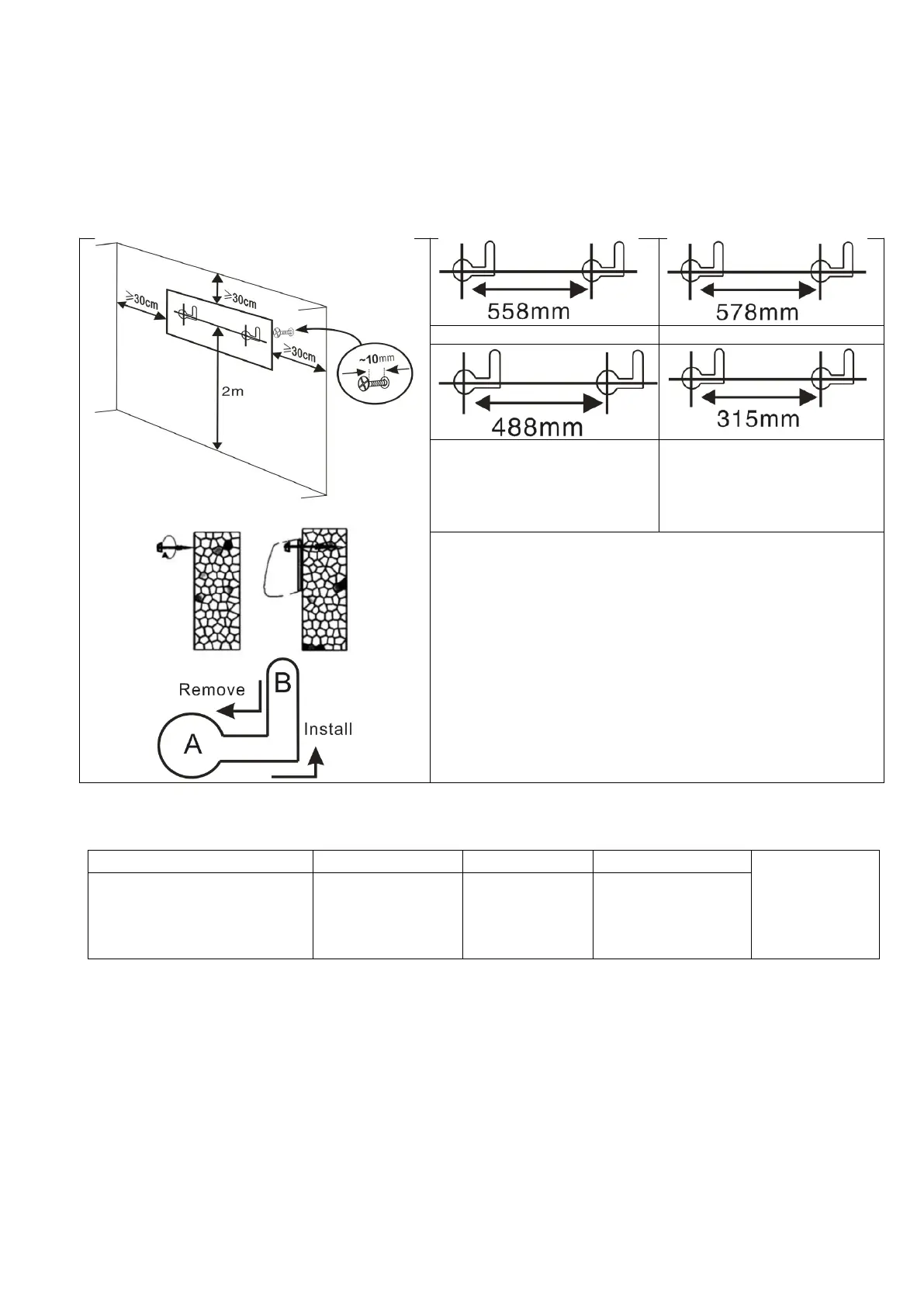
śrubie rozporowej za pomocą śruby. Upewnij się, że zaczep powinien być włożony na
dole. Zobacz poniższy rysunek dla lepszego zrozumienia. (Zobacz zdjęcie)
Użyj elementów maszyny (śrub i rurki rozprężnej) i przymocuj je do ściany zgodnie z
poniższym rysunkiem, a następnie zamontuj maszynę.
Uwaga: maksymalna waga urządzenia to 4,1 kg, ściana powinna być w stanie unieść ten
ciężar.
PTC-3007L-E PTC-3013L-E
PTC-3014L-E
PTC-3015L-E PTC-3016L-
E
PTC-3017L-EPTC-3018L-E
PTC-3019L-EPTC-3020L-E
PTC-3015L-EA
1. Odległość między produktem a sufitem (i bokiem)
powinna wynosić ≥30 cm.
2. Rozmiar instalacji produktu patrz rysunek.
3. Uwaga: gdy produkt jest zainstalowany, hak (śruba)
jest wyrównany z otworem „A” w produkcie. Po
zawieszeniu należy przesunąć do „B”, w celu
stabilnego zamocowania.
Kiedy chcesz zdjąć produkt ze ściany, należy go
przenieść z „B” do „A”, a następnie wyjąć.
Parametry techniczne:
Model Moc Napięcie Częstotliwość
Klasa II
MalTec Kurtyna
powietrzna PT3800Wt
DISPLAY + pilot
2000W 220-240V~ 50-60Hz
Obsługa:
1. Upewnij się, że właściwości gniazda zasilającego powinny wynosić 220-240 V ~,
50-60Hz.
2. Włóż wtyczkę do gniazdka ściennego.
4/38