EasyManua.ls Logo

Man L16/24 - Page 79

Man L16/24
392 pages
Print Icon
To Next Page IconTo Next Page
To Next Page IconTo Next Page
To Previous Page IconTo Previous Page
To Previous Page IconTo Previous Page
Loading...
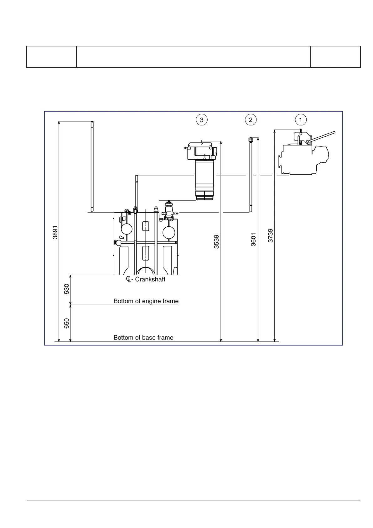
Low dismantling height
Important! Extra dismantling height is required in
the areas directly above the main bearing studs.
1) Remove the cylinder head separately by
unscrewing the 4 connecting screws between
cylinder head and the cooling water jacket.
2) Dismantle the main bearing stud by means of
two counter nuts and a 60 mm wrench.
3) Remove the cylinder liner with fixed connecting
rod, piston and cooling water jacket with the
special tool for low dismantling height.
MAN Diesel & Turbo
1665770-6.6
Page 3 (4)
Overhaul areas
B 10 01 1
L27/38S, L27/38
2015.11.27

Table of Contents

Related product manuals