EasyManua.ls Logo

Marantz 3600 - Page 9

Marantz 3600
30 pages
Print Icon
To Next Page IconTo Next Page
To Next Page IconTo Next Page
To Previous Page IconTo Previous Page
To Previous Page IconTo Previous Page
Loading...
oof
002
Vv
ouvod
Yala
dAvadd
(Q31SIML)
BOLBNGNOD
&
(G31SiML)
YOLINGNOD
£
(G@3LSIML}
HOLINAGNOD
Z
ee!
LHM/G3Y8
MIA
dOL
M3IA
WOLLOS
({G31SIML}
HOLONANOD
Z
JLOW34Y
SiNdNt
YINVvads
ee
¥V3H
SISSVHD
aSva
SISSVHO
LNOY¥4
SISSVHO
rm
re
ee
ee
ee
|
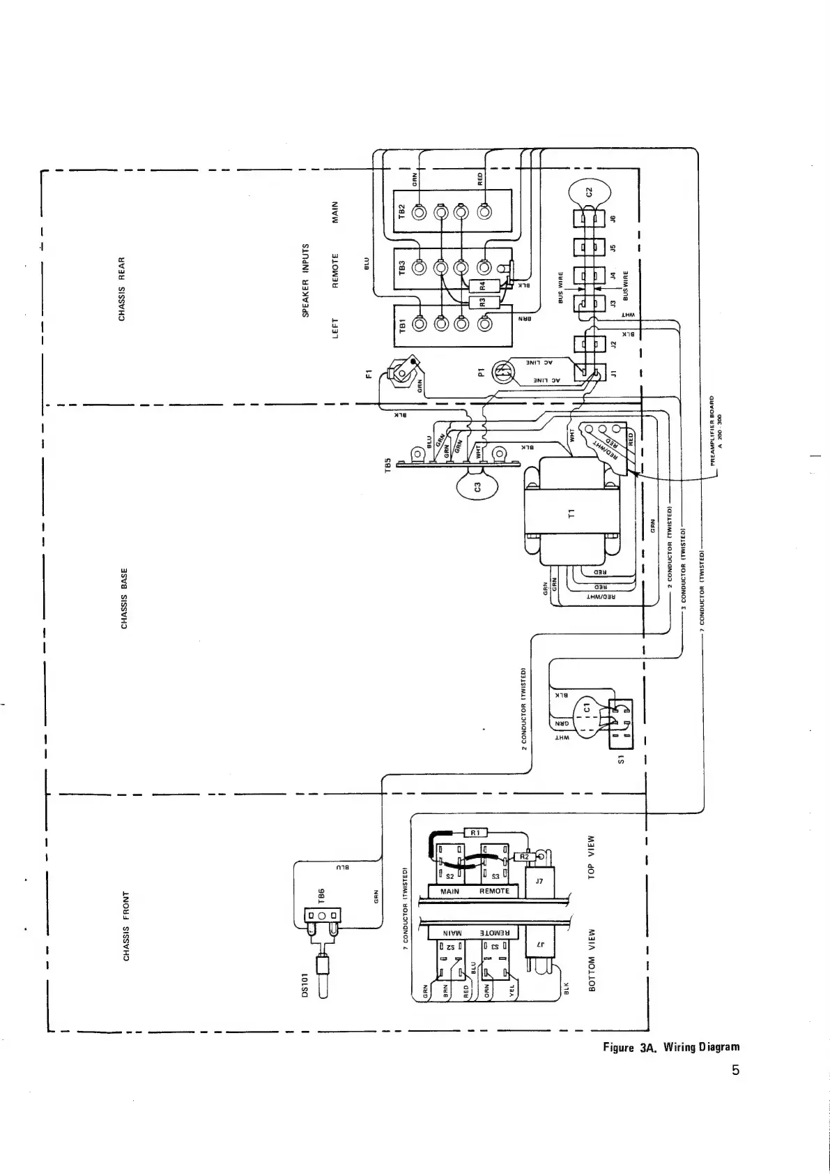
Figure
3A.
Wiring
Diagram

Related product manuals