EasyManua.ls Logo

Marantz SD1010 - Page 16

Marantz SD1010
44 pages
Print Icon
To Next Page IconTo Next Page
To Next Page IconTo Next Page
To Previous Page IconTo Previous Page
To Previous Page IconTo Previous Page
Loading...
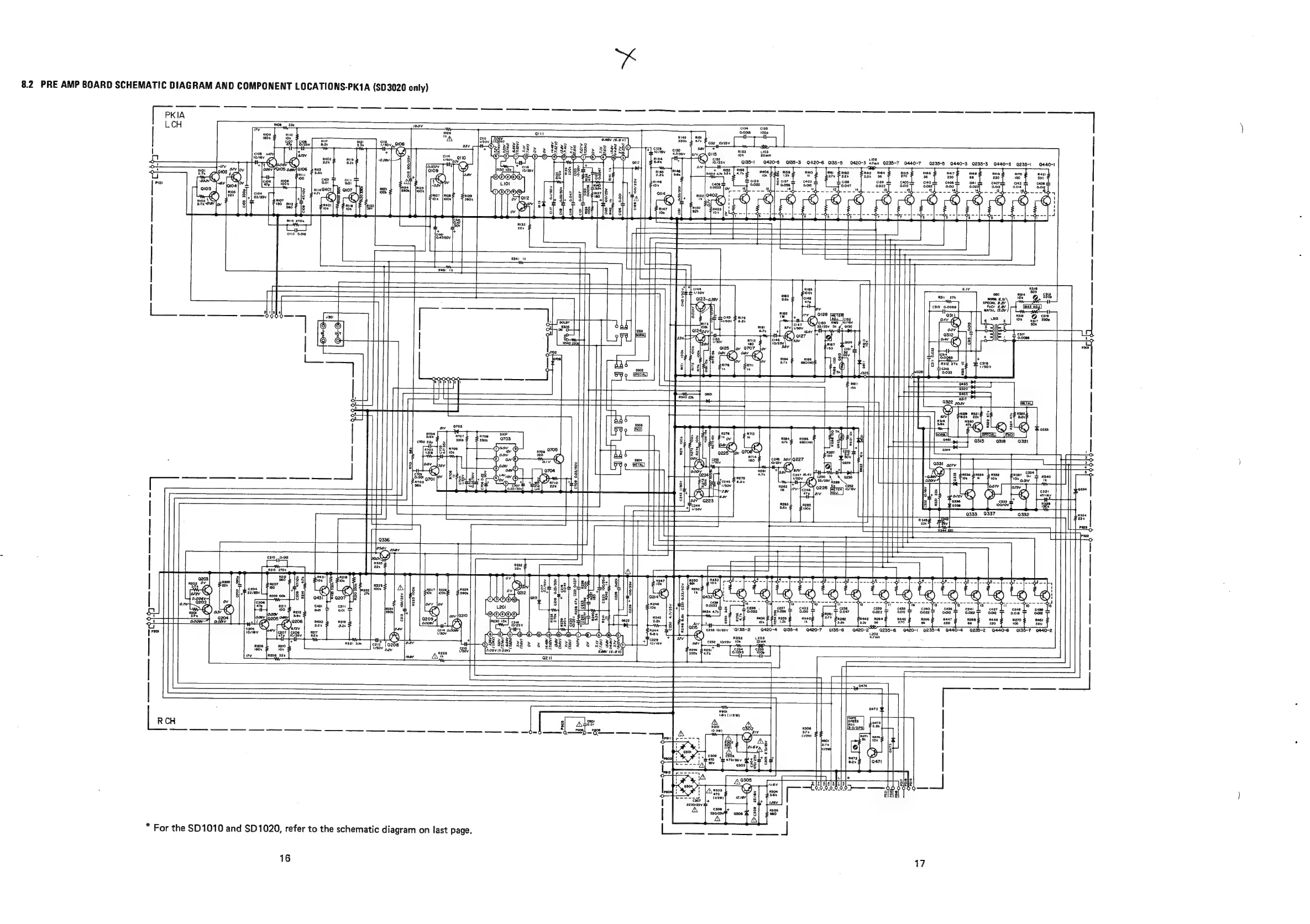
8.2
PRE
AMP
BOARD
SCHEMATIC
DIAGRAM
AND
COMPONENT
LOCATIONS-PK1A
(S$D3020
only)
or
ci3s
0.0015
100p
WA
RUT
132
ovesv
Sie
=
cae
133
10
a
es,
BE
ie
Tedovy
39110
toyesv
QI35-1
0420-8
—Q135-3
0420-6
135-5
0420-3
4.7m
Q235-7
0440-7
0235-5
0440-3
G235-3
0440-5
0235-1
0440-1
eae
T
HT
OD
é
ee
Skea
wath.”
“Gen
Eo
eas
2
nat
mabe
aie
ae
tt
ee
22k
56
270
56
220
68
220
400
330
ci39
Caos:
ciso
Caos
cat
aor:
cae
sos
0.022
0.012
O22"
0012
0.028]
.012"
os
0.012
mg
0h
ed
ad
a
ad
ed
kk
(7
i
4
"G
(r
4
Cy
Cr?
oy!
©
©
OO
© © ©
©
@!}
'
o
---4
-+
--+4
--~>
—-4
-=-%
i~
-
>
j-4
CHO
0.012
Sse
Sinem
eeeas
ry
Jo]
a
Jor}
|
0334
Q
meee
ce)
OOO
eee
ees
es
ee
l
R225
100K
C228
*
“i00725v
7
R266
36
220
6e
220
100
330
c2as
toresv
=
Q135-2
Q420-4
135-4
=
0420-7
0135-6
420-2,
0235-6
Q420-1
Q235-4
0440-4
0235-2
0440-6
135-7
0440-2
47m
"C230.
4.7/35V
R253
6232
twesy
10K
Z06V
(7.55V)
Reo
Wek
(20)
R301
to
Ww)
*
For
the
SD1010
and
$D1020,
refer
to
the
schematic
diagram
on
last
page.
16
17

Related product manuals