EasyManua.ls Logo

Marathon V-6030 - Diagram

Marathon V-6030
50 pages
Print Icon
To Next Page IconTo Next Page
To Next Page IconTo Next Page
To Previous Page IconTo Previous Page
To Previous Page IconTo Previous Page
Loading...
1 OPERATION
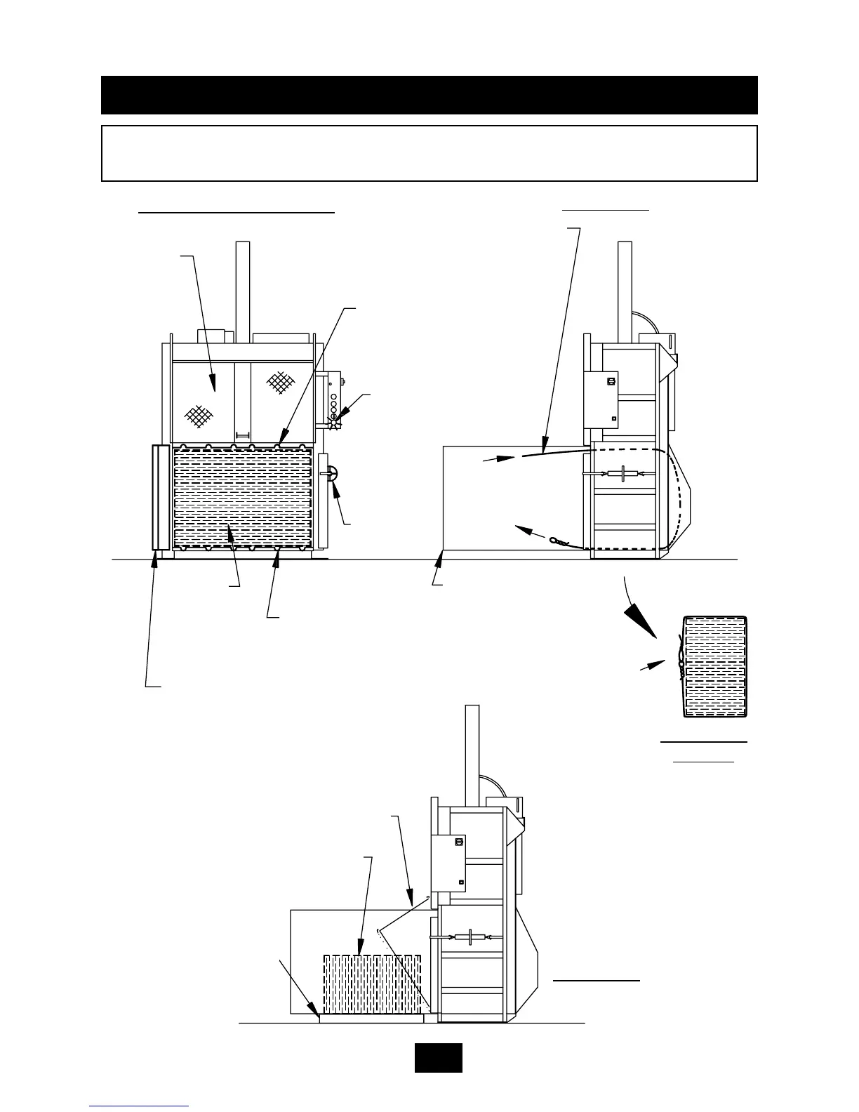
DIAGRAM -
BALE TIE OFF/BALE EJECT FOR V-6030HD, V-4830HD, V-7230HD
GATE -
CLOSED.
STEP 3.
PLATEN - BALE TIE
GUIDE, 6 PLACES.
SEE STEP 5.
BALE
MADE
LIGHT
DOOR
LATCH -
OPEN
BALE CHAMBER DOOR - OPEN.
SEE STEP 4.
FLOOR - BALE TIE
GUIDE, 6 PLACES.
SEE STEP 5.
FEED
FRONT VIEW OF BALER
SIDE VIEW
BALE TIE - TIGHTENED
HAND TIGHT
BALE DURING EJECTION
BALE
PALLET RECOMMENDED
FOR SUPPORTING BALE
SIDE VIEW
BALE CHAMBER
DOOR
SIDE VIEW
- BALE
BALE TIE - INSERT AND PUSH THROUGH
PLATEN GUIDES. TIES WILL CIRCLE THE
BALE AND COME OUT OF THE FLOOR
GUIDES. SEE STEP 5.
BALE
1-10

Related product manuals