EasyManua.ls Logo

Mark ERV Series - Wartung

Mark ERV Series
160 pages
Print Icon
To Next Page IconTo Next Page
To Next Page IconTo Next Page
To Previous Page IconTo Previous Page
To Previous Page IconTo Previous Page
Loading...
58
WARTUNG
Das Netzteil muss vor der Installation und Wartung isoliert werden, um Verletzungen bzw. elektrischen
Schlag zu vermeiden. Stromkabel, Leistungsschalter und Erdkabel müssen den nationalen Vorschriften
entsprechen. Wenn Sie die Vorschriften nicht einhalten, kann das zu Schäden am Gerät, Stromschlag
oder Feuer führen.
Standardlter sind in diesem Gerät vorhanden und sollten verwendet werden. Im Wämetauscher kön-
nen sich Staub und Schmutz ansammeln, wenn die Filter entfernt werden. (Dies kann zum Ausfall oder
verringerter Leistung führen) Zum den efzieten Betrieb zu gewährleisten, ist eine regelmäßige Reini-
gung oder Austausch der Filter erforderlich. Die Häuftigkeit des Filteraustausches oder der Reinigung
hängt vom der Umgebung und der Betriebsdauer des Gerätes ab.
Der Benutzer kann das Gerät nach der Prüfperiode gebrauchen. Bevor Sie uns kontaktieren, können Sie
anhand der unten stehenden Tabelle, im Falle einer Störung folgende Probleme lösen.
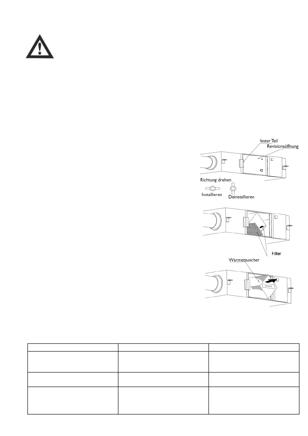
Die Filter reinigen
1. Öffnen Sie die Revisionsöffnung
2. Entfernen Sie die Filter (von der Seite des Gerätes)
3. Staubsaugen Sie die Filter, um Staub und Schmutz zu entfernen.
Bei stärkerem Verschmutzungen tauchen Sie die Filter vorsichtig
in Wasser, um diese zu reinigen.
4. Nach dem Trocken montieren Sie die Filter in die Positionen
wieder und schließen Sie die Revisionsöffnung.
5. Stark verschmutze und kaputte Filter müssen ausgetauscht
werden.
Wartung des Wärmetauschers
1. Ziehen Sie als Erstes die Filter ab
2. Holen Sie den Wärmetauscher aus dem Gerät
3. Legen Sie einen Zeitplan fest, um den Wärmetauscher von
Staub und Schmutz zu reinigen.
4. Installieren Sie den Wärmetauscher und die Filter an ihren
Positionen und schließen Sie die Revisionsöffnung.
Anmerkung: Empfohlen wird, den Wärmetauscher alle 3 Jahre zu
warten
Warnung
Fehlerdiagnose
Vorkommnis mögliche Ursachen Lösung
Das Luftvolumen sowohl bei den In-
nen- wie auch Außenöffnungen tropfen
enrom nach längerem Betrieb.
Staub und Schmutz blockieren den
Filter
Reinigen oder tauschen Sie die Filter
aus.
Geräusche kommen aus den Lüf-
tungsöffnung
Lüftungsinstallation schlägt fehl. Drehen Sie die Verbindungen der Lüf-
tungsinstalltion erneut fest.
Gerät arbeitet nicht 1. kein Strom
2. der Sicherheitsschalter wurde ge-
trennt
1. Prüfen Sie ob Strom anliegt.
2. Schließen Sie den Wahlschalter an.

Related product manuals