EasyManua.ls Logo

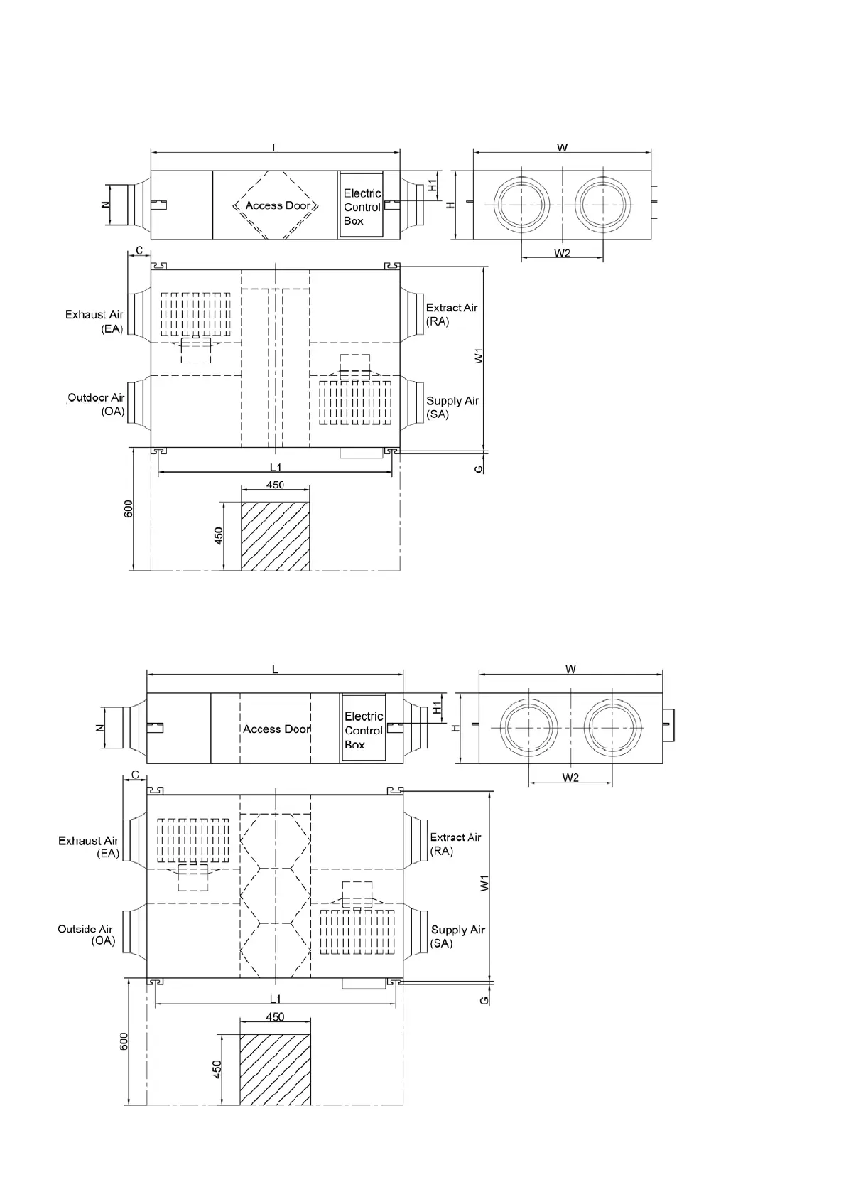
Mark ERV Series - DIMENSIONED DRAWINGS; ERV500 Model Dimensions; ERV1000 Model Dimensions

Mark ERV Series
160 pages
Print Icon
To Next Page IconTo Next Page
To Next Page IconTo Next Page
To Previous Page IconTo Previous Page
To Previous Page IconTo Previous Page
Loading...
6
DIMENSIONED DRAWINGS
ERV1000 MODEL
ERV500 MODEL

Related product manuals