EasyManua.ls Logo

Mark ERV Series - ERV2000 Model Dimensions; Diagram Measurements Reference

Mark ERV Series
160 pages
Print Icon
To Next Page IconTo Next Page
To Next Page IconTo Next Page
To Previous Page IconTo Previous Page
To Previous Page IconTo Previous Page
Loading...
7
EN
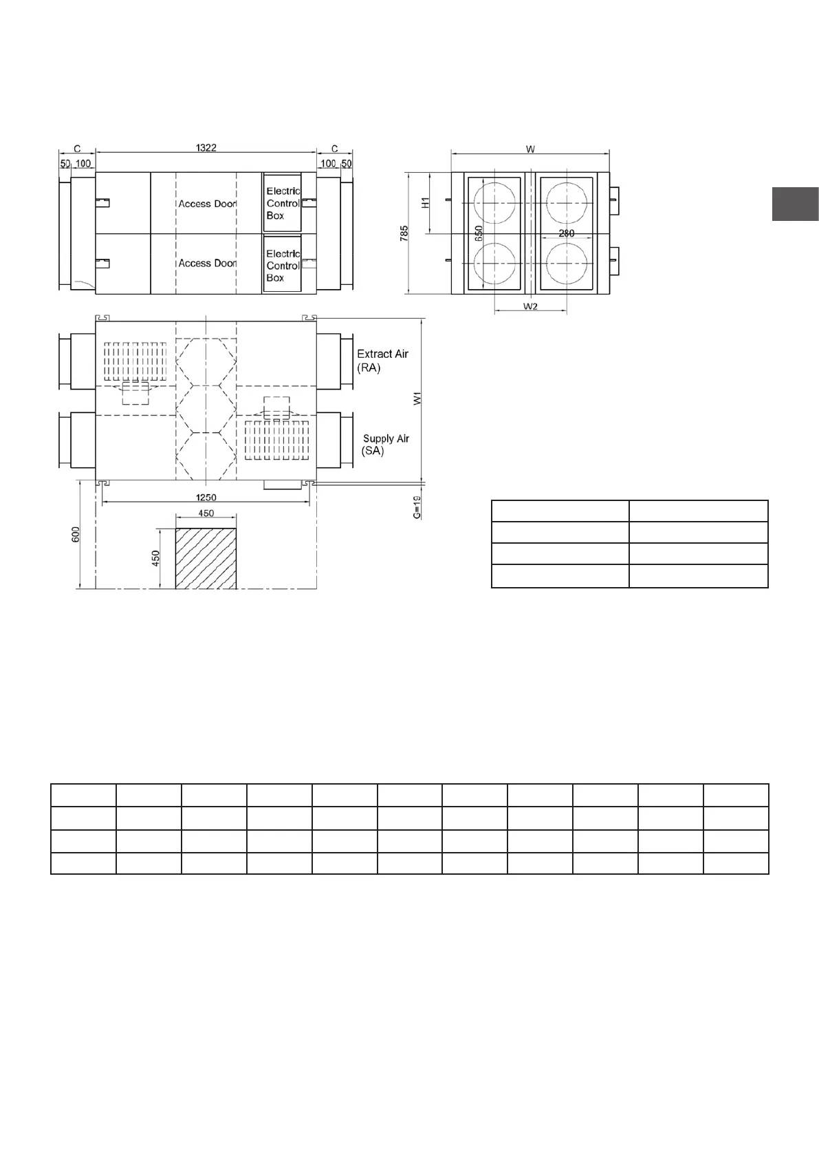
ERV2000 MODEL
Model Dia. (mm)
ERV500 ø 200
ERV1000 ø 250
ERV2000 280*650
DIAGRAM MEASUREMENTS
The table below shows suitable duct measurements for each unit. The table below shows the dimensions of
the image above and the two images previously, the letter in the table represents the letter on the diagram .
Model L L1 W W1 W2 H H1 C G N
ERV500 962 890 904 960 500 270 111 107 19
ø 194
ERV1000 1322 1250 1134 1190 678 388 170 85 19
ø 242
ERV2000 1322 1250 1134 1190 678 785 170 150 19 280*650

Related product manuals