EasyManua.ls Logo

Mark ERV Series - Page 68

Mark ERV Series
160 pages
Print Icon
To Next Page IconTo Next Page
To Next Page IconTo Next Page
To Previous Page IconTo Previous Page
To Previous Page IconTo Previous Page
Loading...
68
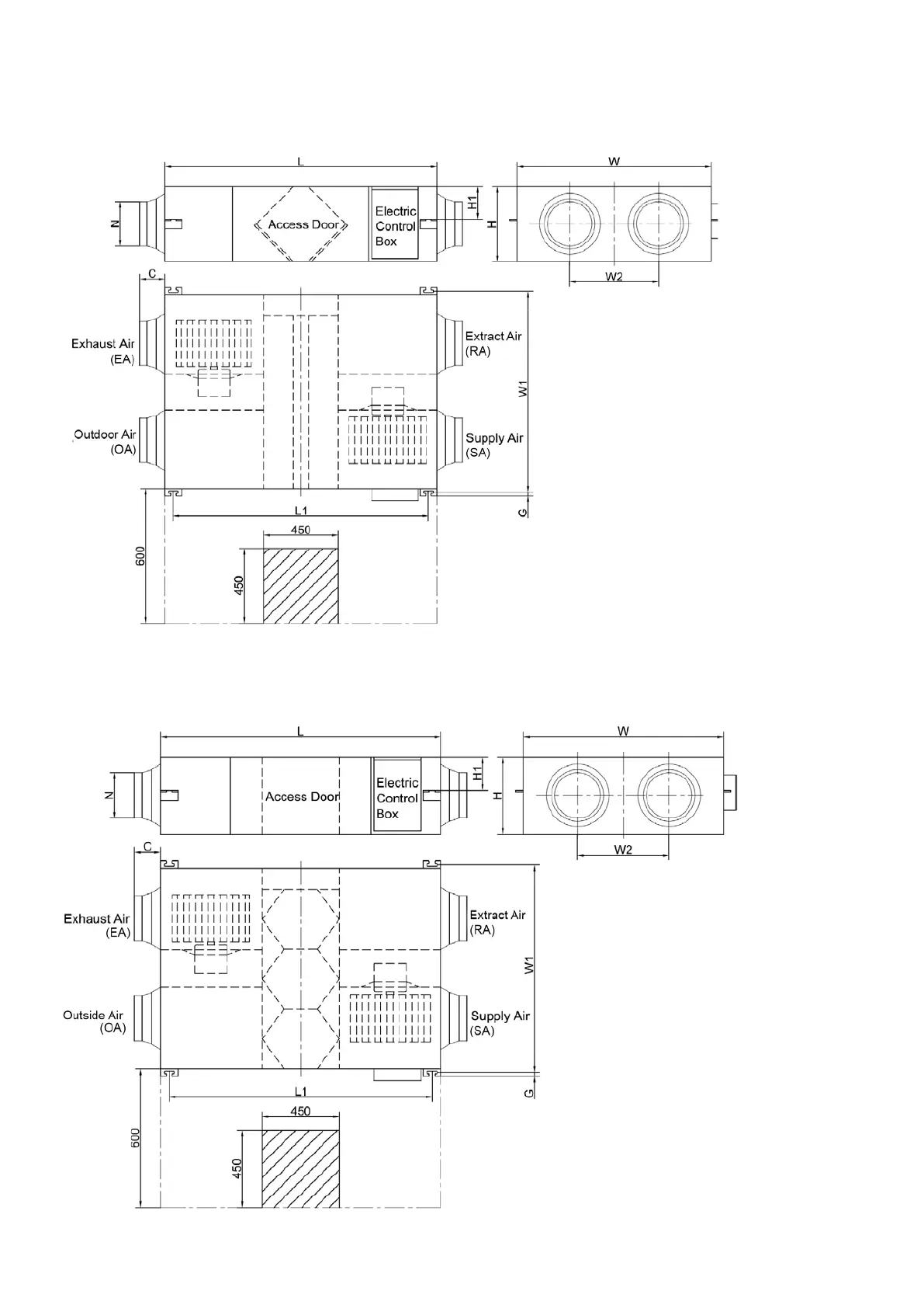
DESSINS DE MESURES
ERV1000 MODELE
ERV500 MODELE

Related product manuals