EasyManua.ls Logo

Mark GS+ - Page 101

Mark GS+
204 pages
Print Icon
To Next Page IconTo Next Page
To Next Page IconTo Next Page
To Previous Page IconTo Previous Page
To Previous Page IconTo Previous Page
Loading...
PL
101
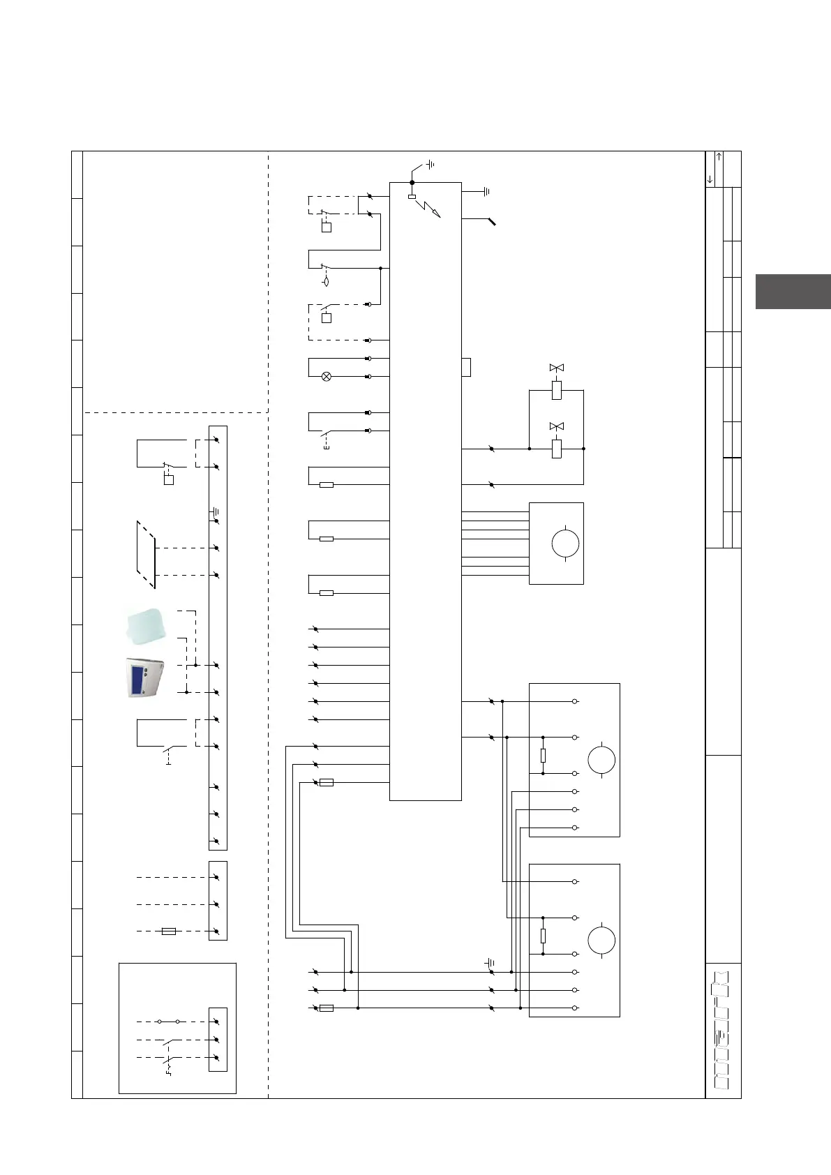
13.0 Schemat elektryczny GS+ 135 EC / 150 EC / 200 EC
W przypadku urzadzenia G+: patrz wewnatrz urzadzenia.
          














 

































 
















 



 
























 




























 














 


 



Related product manuals