EasyManua.ls Logo

Mark GS+ - Page 117

Mark GS+
204 pages
Print Icon
To Next Page IconTo Next Page
To Next Page IconTo Next Page
To Previous Page IconTo Previous Page
To Previous Page IconTo Previous Page
Loading...
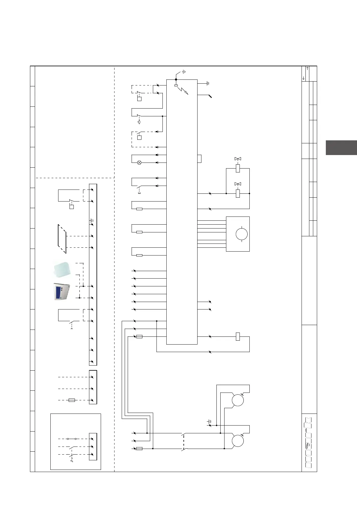
10.0 Schema electrica GS+ 135 / 150 / 200
Pentru G+: vezi interiorul dispozitivului
          













 

































 
















 

























 




























 























RO
117

Related product manuals