EasyManua.ls Logo

Mark GS+ - Page 119

Mark GS+
204 pages
Print Icon
To Next Page IconTo Next Page
To Next Page IconTo Next Page
To Previous Page IconTo Previous Page
To Previous Page IconTo Previous Page
Loading...
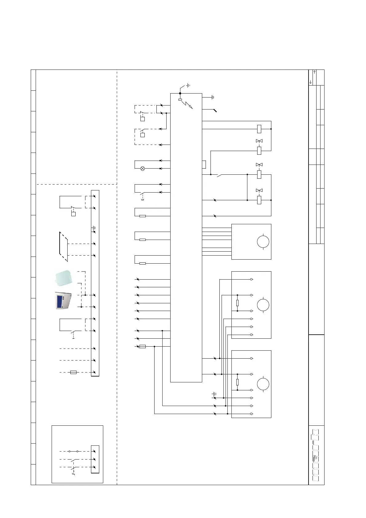
12.0 Schema electrica GS+ 100 EC
Pentru G+: vezi interiorul dispozitivului
1 2 3 4 5 6 7 8 9 10 11 12 13 14 15 16 17 18 19 20
GS+ 100 GAZ NATURAL
GS+ 15-100 PROPANE
EC-fan 230V
Get.
Gec.
Electric desen
J.W.
TvD
Data
Norm
28-1-2022
Numar
desenat
Grup
Art.nu.
WLV Tip
Versiunea
WLV-012250-RO
GS+
1.1
1
t e h n i c a c l i m a t i z r i i
R
Argus 864MN
Ts = 5sec
Tp = 30sec
Generator de curent
Senzor digital temperatura incaperii(optional)
Buton pentru resetare
pornit/oprit (factultativ)
Termostat de camera digital
Ventilator gaze de combustie
Ionizare
Led pentru avertizare
Valva de gaz
Fitil
-
-
-
-
-
-
-
-
-
TT3
S2
S1
RT
VLV
IS
H1
GV1,GV2
F1,F2
1˜ 230V / 50Hz
Switch pentru izolareWS -
TT1
TT2
-
-
Senzor temperatura in apropiere de unitate
Sistem / maxima senzor temepratura
PE
Sitch presiune filtru(cand e folosit)-PF
Conexiuni externe
RT TT3
Max 8
unitati
BUS
factultativ
Motor pentru ventilator 1VM1 -
Motor pentru ventilator 2 (GS+80, GS+100)-VM2
Senzor apă de condensare (factultativ)-W
factultativfactultativ
K2 -
MK -
Releu
by-pass valva de gaz
Pentru generatoare de aer cald cu doua ventilatoare
(GS+80, GS+100)
*
*
GND
0-10V/
PWM
+10VdcPENL GND
0-10V/
PWM
+10VdcPENL
1
NPEL1
GV1 GV2
IS
T2
2
S1
01
J2-1
J2-3
J2-2
J16-7
J16-6
J5-10
J5-2
J5-12
J5-4
TT1
J5-11
J5-3
TT2.1
J13-2
J5-9
J5-1
J20-4
J20-3
1NPEL 3 42
+
-
H1S2
13 14
J13-4
J13-3
J12
J18-2
J18-1
5 6
F2
6.3A
PE
PE
L
L1
Conexiune cu switch izolator
1
2
WS
N
N
3
4
3 4 5 6NPEL
F1
16A
2 41 3
J5-14
J5-6
TT2.2
J13-5
J13-6
J9-2
J9-3
J9-4
J9-5
J9-6
J9-7
J9-1
J20-2
J20-1
7 8
W
J16-8
J16-1
87
PF
P
W
J16-4
11
14
K2
MK
A1
A2
K2
J6-2
J6-3
J2-4
VLV
L
N
-
HALL
+
PWM
1~
M
PE
11 12
VM1
1~
M
109
10KΩ 10KΩ
VM2
1~
M

Related product manuals