EasyManua.ls Logo

Mark GS+ - Page 129

Mark GS+
204 pages
Print Icon
To Next Page IconTo Next Page
To Next Page IconTo Next Page
To Previous Page IconTo Previous Page
To Previous Page IconTo Previous Page
Loading...
149
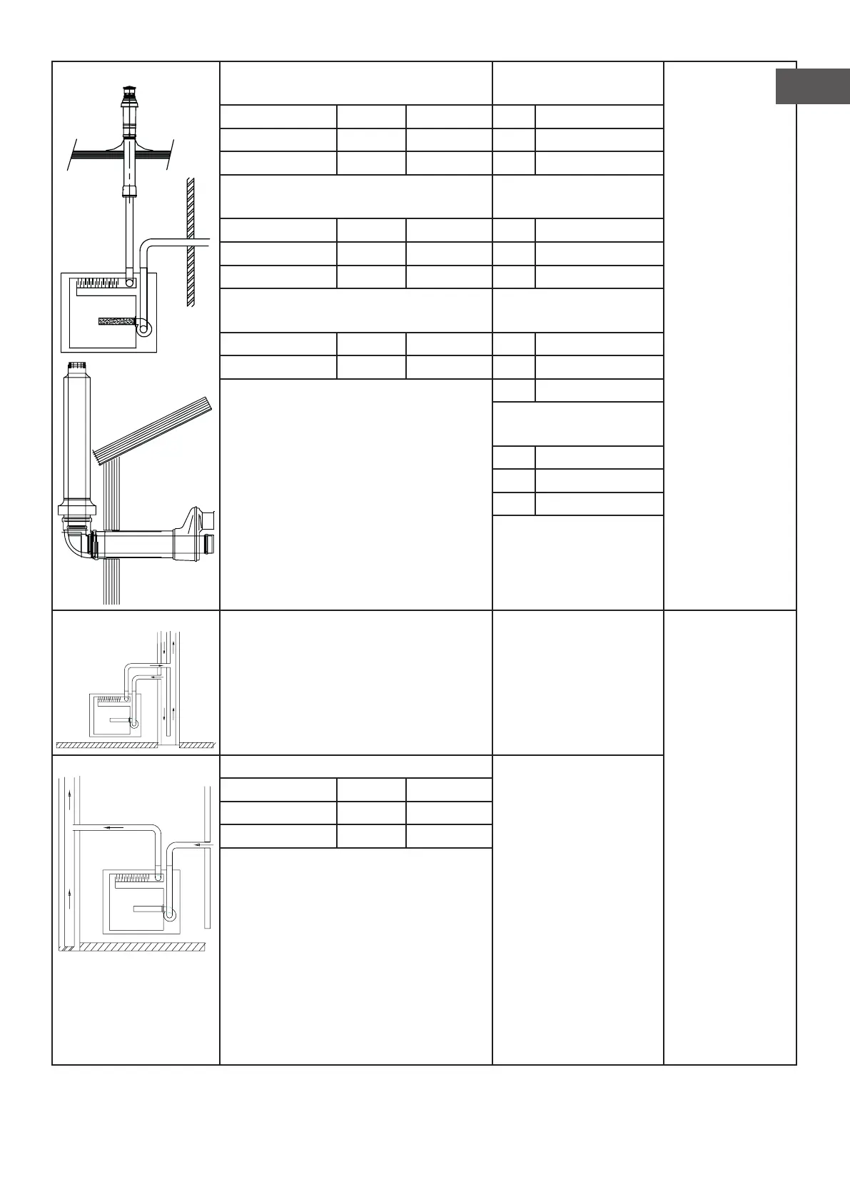
C53 RVS Singularizan el conducto se
ponen horizontal
Tubo de extensión
Polietileno L=500
15/25/35/40 80/125 5990557 80 5989205
60/80/100 100/150 5990561 100 5989206
135/150/200 130/200 5990564 130 5989207
En la combinación con el conducto
horizontal
Tubo de extensión
Polietileno L=1000
15/25/35/40 5990511 80 5989210
60/80/100 5990512 100 5989211
135/150/200 5990513 130 5989212
OR
Déle un codazo 45 °
Polietileno
15/25/35/40 0703100 80 5989224
60/80/100 0703101 100 5989233
130 5989234
Déle un codazo 90 °
Polietileno
80 5989225
100 5989236
130 5989237
C43 C43: El área
mínima interna
de un tubo de
desagüe redondo
común AV, mirar
la mesa [5]
Aplicable sólo
si el sistema de
gas de conducto
combinado tiene
el esbozo su-
ciente natural: la
unidad no tiene
una válvula de no
vuelta interna.
No permiten al
condensado para
uir atrás del sis-
tema de conduc-
to en la unidad.
C83 El conducto solo pone horizontal
15/25/35/40 5990511
60/80/100 5990512
135/150/200 5990513
ES

Related product manuals