EasyManua.ls Logo

Mark GS+ - Page 137

Mark GS+
204 pages
Print Icon
To Next Page IconTo Next Page
To Next Page IconTo Next Page
To Previous Page IconTo Previous Page
To Previous Page IconTo Previous Page
Loading...
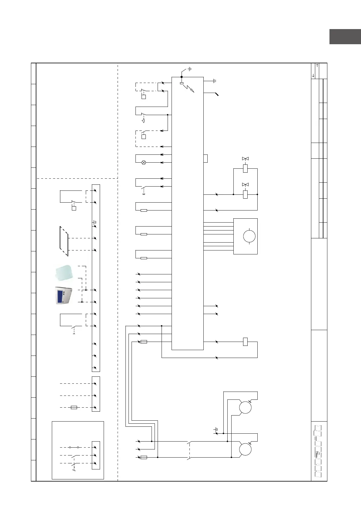
10.0 Diagrama eléctrico GS+ 135 / 150 / 200
Para G+: mirar dentro del aparato.
          













 

































 















 

























 




























 























157
ES

Related product manuals