EasyManua.ls Logo

Mark GS+ - Page 17

Mark GS+
204 pages
Print Icon
To Next Page IconTo Next Page
To Next Page IconTo Next Page
To Previous Page IconTo Previous Page
To Previous Page IconTo Previous Page
Loading...
17
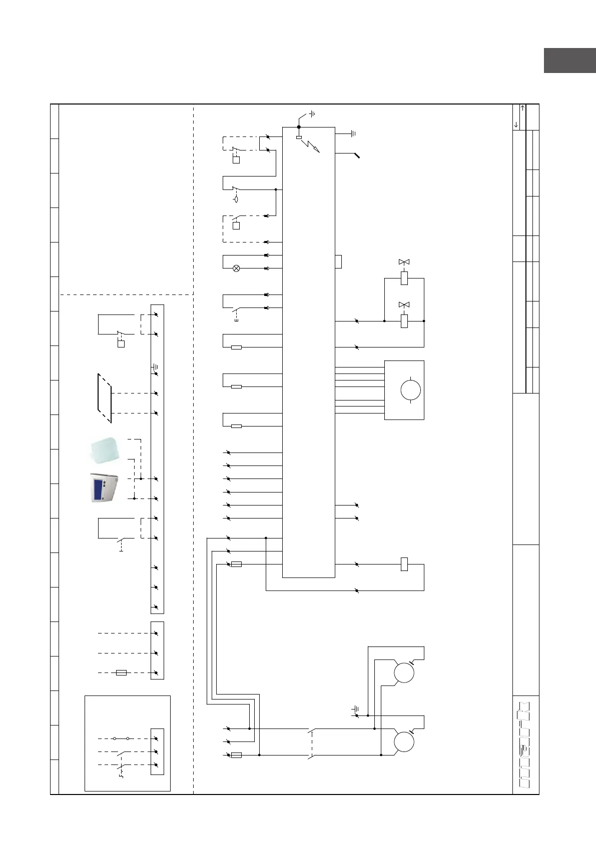
10.0 Electrical diagram GS+ 135 / 150 / 200
For G+: see inside the appliance.
EN
          













 

































 















 

























 




























 
























Related product manuals