EasyManua.ls Logo

Mark GS+ - Page 177

Mark GS+
204 pages
Print Icon
To Next Page IconTo Next Page
To Next Page IconTo Next Page
To Previous Page IconTo Previous Page
To Previous Page IconTo Previous Page
Loading...
SK
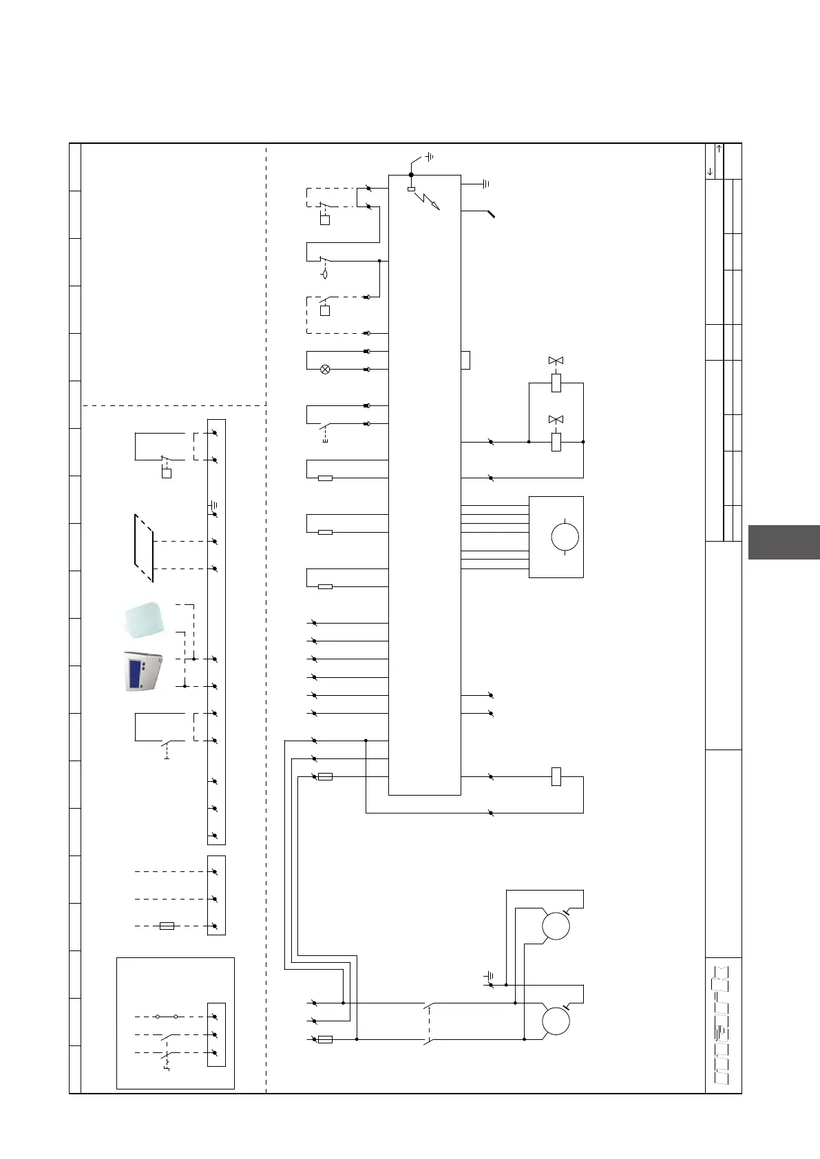
10.0 Elektrická schéma GS+ 135 / 150 / 200
Pre G+: pozri vnútro spotrebiča
          













 

































 















 

























 




























 
























Related product manuals