EasyManua.ls Logo

Mark GS+ - Page 179

Mark GS+
204 pages
Print Icon
To Next Page IconTo Next Page
To Next Page IconTo Next Page
To Previous Page IconTo Previous Page
To Previous Page IconTo Previous Page
Loading...
SK
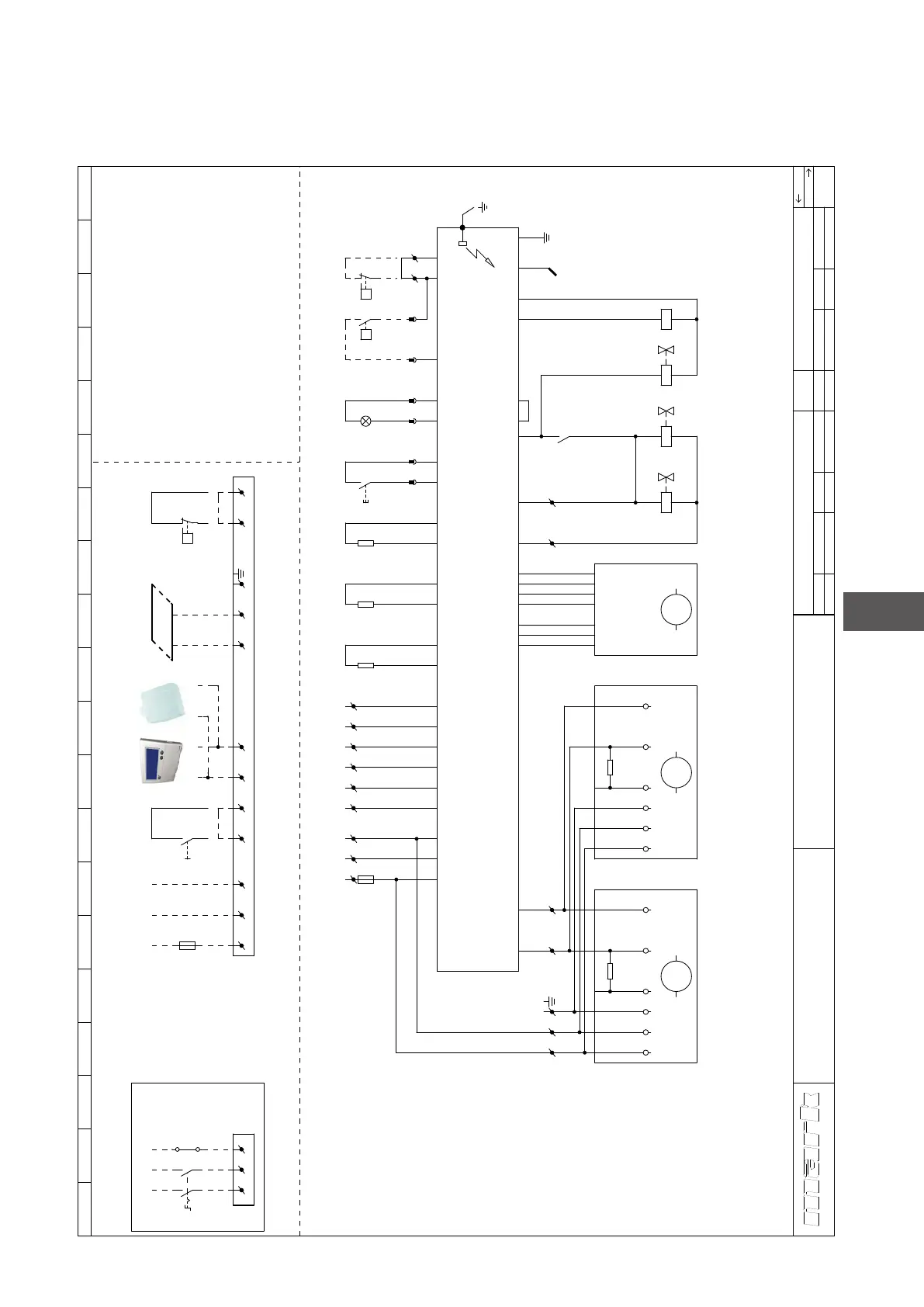
12.0 Elektrická schéma GS+ 100 EC
Pre G+: pozri vnútro spotrebiča
1 2 3 4 5 6 7 8 9 10 11 12 13 14 15 16 17 18 19 20
GS+ 100 NATURAL GAS
GS+ 15-100 PROPANE
EC-fan 230V
Get.
Gec.
Electrical drawing
J.W.
TvD
Date
Norm
28-1-2022
Drawing
number
Group
Art.nr.
WLV Type
Version
WLV-012250-EN
GS+
1.1
1
c l i m a t e t e c h n o l o g y
R
Argus 864MN
Ts = 5sec
Tp = 30sec
Power supply
Digital roomtemperature sensor (optional)
Reset button
On/off switch (option)
Digital room thermostat
Combustion air fan
Ionization bar
Alarm light
Gasvalve
Fuse
-
-
-
-
-
-
-
-
-
TT3
S2
S1
RT
VLV
IS
H1
GV1,GV2
F1,F2
1˜ 230V / 50Hz
Isolator switchWS -
TT1
TT2
-
-
Temperatursensor in the vicinity of the unit
System / maximum temperature sensor
PE
Pressure switch filter (when used)-PF
External connections
RT TT3
Max 8 units
BUS
option
Fan motor 1VM1 -
Fan motor 2 (GS+80, GS+100)-VM2
Condensation water sensor (option)-W
optionoption
K2 -
MK -
Relais
Bypass gasvalve
For heaters with two fans
(GS+80, GS+100)
*
*
GND
0-10V/
PWM
+10VdcPENL GND
0-10V/
PWM
+10VdcPENL
1
NPEL1
GV1 GV2
IS
T2
2
S1
01
J2-1
J2-3
J2-2
J16-7
J16-6
J5-10
J5-2
J5-12
J5-4
TT1
J5-11
J5-3
TT2.1
J13-2
J5-9
J5-1
J20-4
J20-3
1NPEL 3 42
+
-
H1S2
13 14
J13-4
J13-3
J12
J18-2
J18-1
5 6
F2
6.3A
PE
PE
L
L1
Connection with isolator switch
1
2
WS
N
N
3
4
3 4 5 6NPEL
F1
16A
2 41 3
J5-14
J5-6
TT2.2
J13-5
J13-6
J9-2
J9-3
J9-4
J9-5
J9-6
J9-7
J9-1
J20-2
J20-1
7 8
W
J16-8
J16-1
87
PF
P
W
J16-4
11
14
K2
MK
A1
A2
K2
J6-2
J6-3
J2-4
VLV
L
N
-
HALL
+
PWM
1~
M
PE
11 12
VM1
1~
M
109
10KΩ 10KΩ
VM2
1~
M

Related product manuals