EasyManua.ls Logo

Mark GS+ - Page 183

Mark GS+
204 pages
Print Icon
To Next Page IconTo Next Page
To Next Page IconTo Next Page
To Previous Page IconTo Previous Page
To Previous Page IconTo Previous Page
Loading...
[1]
J min.
203
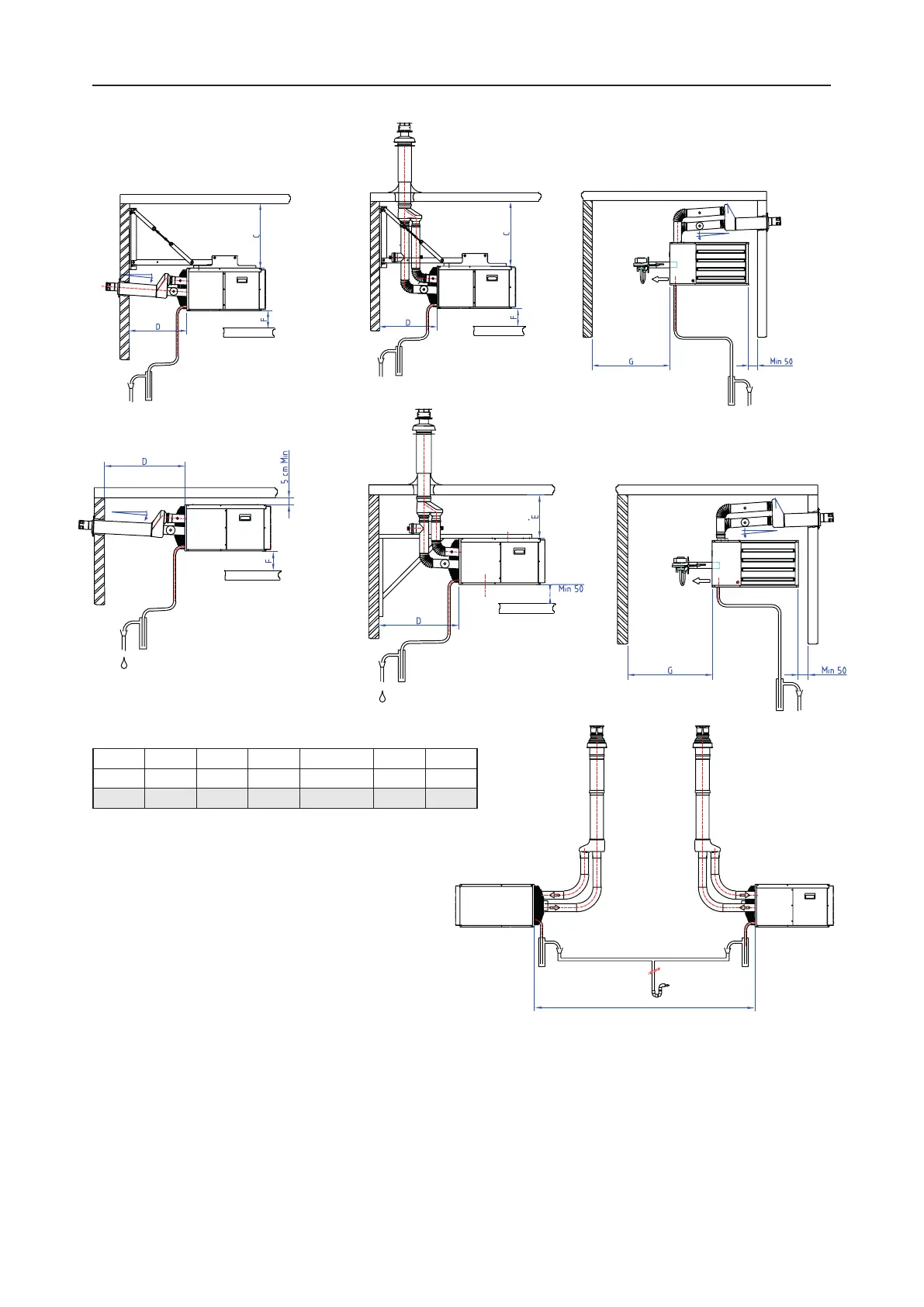
T C D E F> G J
15 575 350 70 400 - 2500 430 1000
25 575 350 70 400 - 2500 430 1000

Related product manuals