EasyManua.ls Logo

Mark GS+ - Page 36

Mark GS+
204 pages
Print Icon
To Next Page IconTo Next Page
To Next Page IconTo Next Page
To Previous Page IconTo Previous Page
To Previous Page IconTo Previous Page
Loading...
36
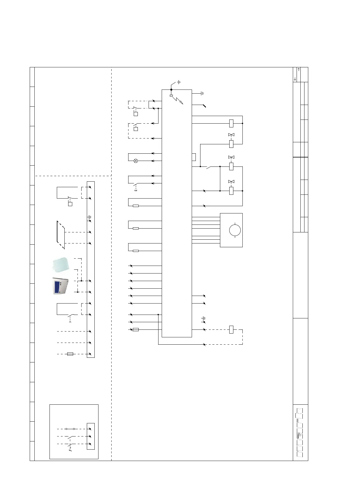
9.0 Schaltplan GS+ 100
Für G+: Siehe Innenseite des Geräts.
1 2 3 4 5 6 7 8 9 10 11 12 13 14 15 16 17 18 19 20
G+ 100 ERDGAS
Mit Bypass gasmagnetventil
Get.
Gec.
Schaltplan
J.W.
TvD
Datum
Norm
28-1-2022
Schaltplan-
nummer
Gruppe
Art.nr.
WLV Type
Version
WLV-012240-DE
GS+
1.1
1
i n n o v a t i e v e H a l l e n h e i z u n g
R
Argus 864MN
Ts = 5sec
Tp = 30sec
Einspeisung
Raumtemperaturfühler digital (optional)
Resettaste
Ein/aus Schalter (Wählbar)
Raumthermostat digital
Verbrennungsluftlüfter
Ionsisationselektrode
Störungsleuchte
Gasmagnetventil
Sicherung
-
-
-
-
-
-
-
-
-
TT3
S2
S1
RT
VLV
IS
H1
GV1,GV2
F1,F2
1˜ 230V / 50Hz
ReparaturschalterWS -
TT1
TT2
-
-
Temperaturfühler in der Nähe vom Gerät
System / maximal temperaturfühler
PE
Druckdifferenzschalter Filter (wenn verwendet)-PF
Externer Anschluß
RT TT3
Maximal 8
Geräte
BUS
Wählbar
Ventilatormotor 1K1 -
Kondenswassersensor (Wählbar)-W
WählbarWählbar
K2 -
MK -
Relais
Bypass gasmagnetventil
1
NPE
11
L1
12
GV1 GV2
IS
T2
2
S1
01
J2-1
J2-3
J2-2
J16-7
J16-6
J5-10
J5-2
J5-12
J5-4
TT1
J5-11
J5-3
TT2.1
J13-2
J5-9
J5-1
J20-4
J20-3
J7-4
1NPEL 3 42
+
-
H1S2
13 14
J13-4
J13-3
J12
J18-2
J18-1
5 6
F2
6.3A
PE
PE
L
L1
Anschluß mit Reparaturschalter
1
2
WS
N
N
3
4
3 4 5 6NPEL
F1
16A
2 41 3
J5-14
J5-6
TT2.2
J13-5
J13-6
VLV
L
N
-
HALL
+
PWM
1~
M
J9-2
J9-3
J9-4
J9-5
J9-6
J9-7
PE J9-1
109
J20-2
J20-1
7 8
W
J16-8
J16-1
87
PF
P
W
J16-4
11
14
K2
MK
A1
A2
K2
J6-2
J6-3
J2-4
A1
A2
K1

Related product manuals