EasyManua.ls Logo

Mark GS+ - Page 59

Mark GS+
204 pages
Print Icon
To Next Page IconTo Next Page
To Next Page IconTo Next Page
To Previous Page IconTo Previous Page
To Previous Page IconTo Previous Page
Loading...
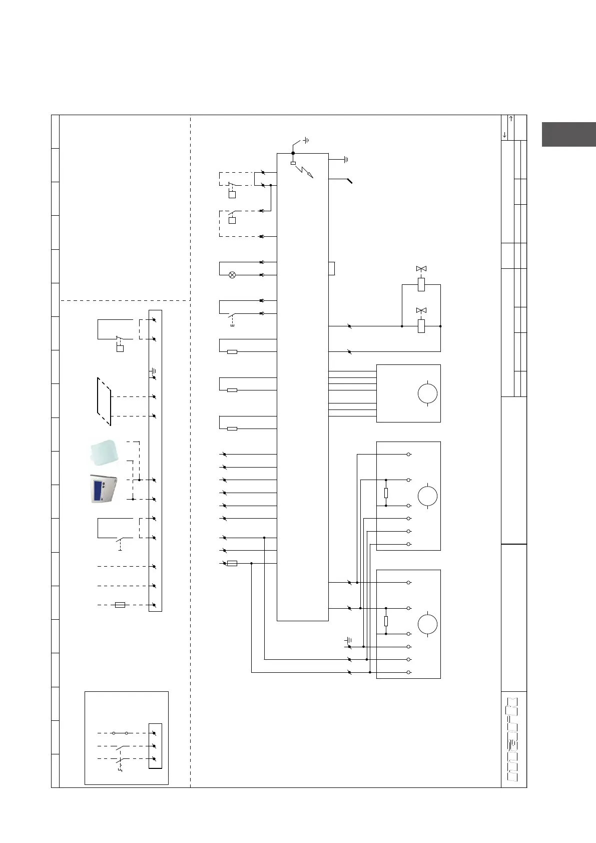
11.0 Schéma électrique GS+ 15 - 80 EC
Pour G+: voir l’intérieur de l’appareil.
1 2 3 4 5 6 7 8 9 10 11 12 13 14 15 16 17 18 19 20
GS+ 15-80
EC-fan 230V
Get.
Gec.
Schema electrique
J.W.
TvD
Date
Norm
28-1-2022
Schéma
d'electrique
Groupe
Art.nr.
WLV Type
Version
WLV-012220-FR
GS+
1.1
1
c l i m a t i s a t i o n
R
Argus 864MN
Ts = 5sec
Tp = 30sec
Alimentation
Sonde de température digital (option)
Réarmement á distance
Interrupteur marche/arret (facultative)
Thermostat d'ambiance digital
Ventilateur de chauffage
Barre d'ionisation
Témoin défaut
Vanne gaz
Fusible
-
-
-
-
-
-
-
-
-
TT3
S2
S1
RT
VLV
IS
H1
GV1,GV2
F1,F2
1˜ 230V / 50Hz
L'interrupteur de proximitéWS -
TT1
TT2
-
-
Sonde de température de proximité
Sonde de température système / maximal
PE
Pressostat de filtre (si nécessaire)-PF
Raccordement externe
RT TT3
Maximum 8
appareils
BUS
facultative
Moteur ventilateur 1VM1 -
Moteur ventilateur 2 (GS+80)-VM2
Pour aérothermes avec 2 ventilateurs
Sonde d'eau de condensation (facultative)-W
facultativefacultative
(GS+80)
*
*
GND
0-10V/
PWM
+10VdcPENL GND
0-10V/
PWM
+10VdcPENL
1
NPEL1
GV1 GV2
IS
T2
2
S1
01
J2-1
J2-3
J2-2
J16-7
J16-6
J5-10
J5-2
J5-12
J5-4
TT1
J5-11
J5-3
TT2.1
J13-2
J5-9
J5-1
J20-4
J20-3
1NPEL 3 42
+
-
H1S2
13 14
J13-4
J13-3
J12
J18-2
J18-1
5 6
F2
6.3A
PE
PE
L
L1
Raccordement avec interrupter de
proximité
1
2
WS
N
N
3
4
3 4 5 6NPEL
F1
16A
2 41 3
J5-14
J5-6
TT2.2
J13-5
J13-6
VLV
L
N
-
HALL
+
PWM
1~
M
J9-2
J9-3
J9-4
J9-5
J9-6
J9-7
PE J9-1
7 8
W
J16-8
J16-1
87
PF
P
W
J16-4
11 12
VM1
1~
M
109
J20-2
J20-1
10KΩ 10KΩ
VM2
1~
M
FR
59

Related product manuals