EasyManua.ls Logo

Mark GS+ - Page 61

Mark GS+
204 pages
Print Icon
To Next Page IconTo Next Page
To Next Page IconTo Next Page
To Previous Page IconTo Previous Page
To Previous Page IconTo Previous Page
Loading...
FR
61
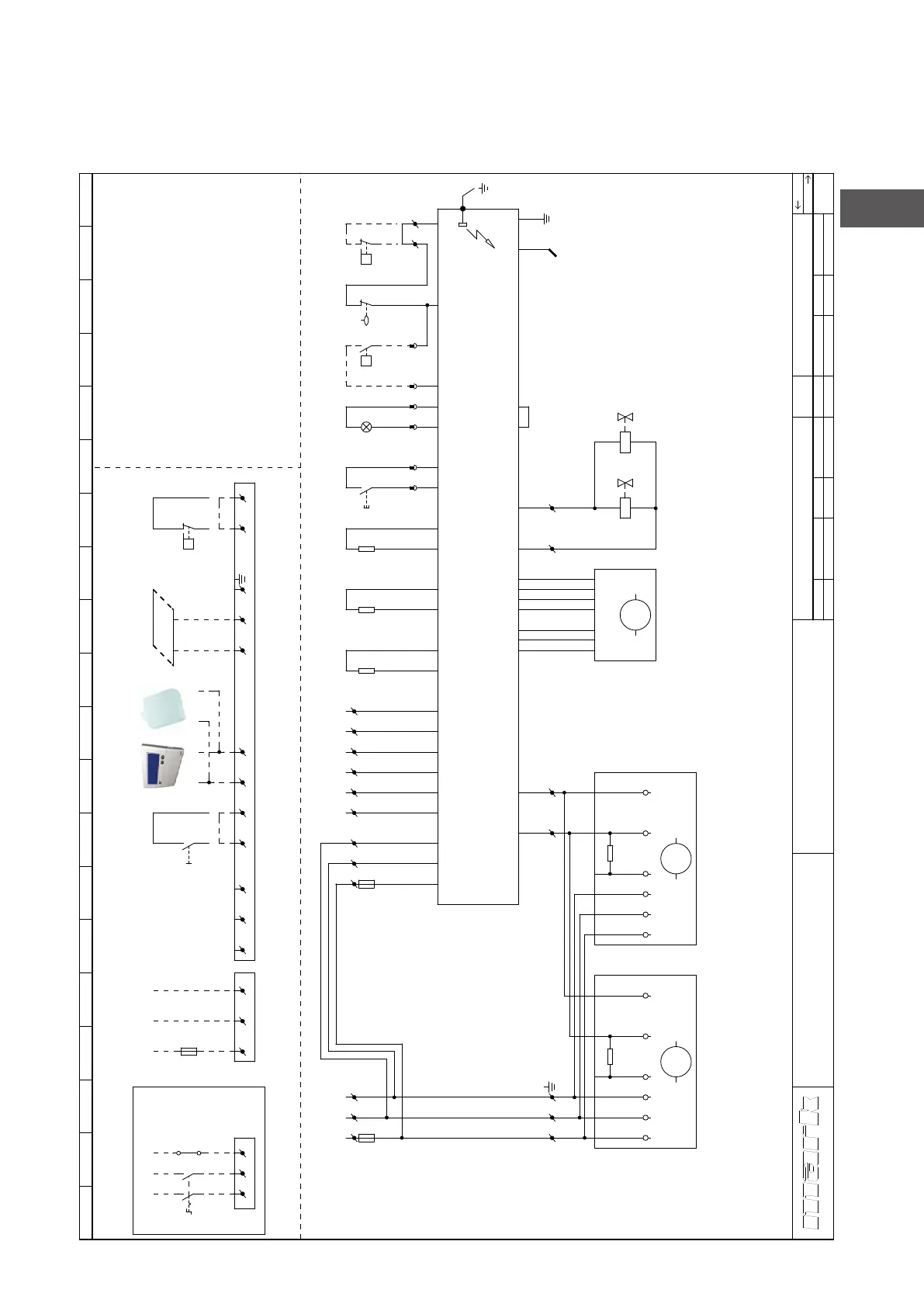
13.0 Schéma électrique GS+ 135 EC / 150 EC / 200 EC
Pour G+: voir l’intérieur de l’appareil.
          














 

































 
















 



 
























 





























 














 


 



Related product manuals