EasyManua.ls Logo

Mark GS+ - Page 69

Mark GS+
204 pages
Print Icon
To Next Page IconTo Next Page
To Next Page IconTo Next Page
To Previous Page IconTo Previous Page
To Previous Page IconTo Previous Page
Loading...
69
NL
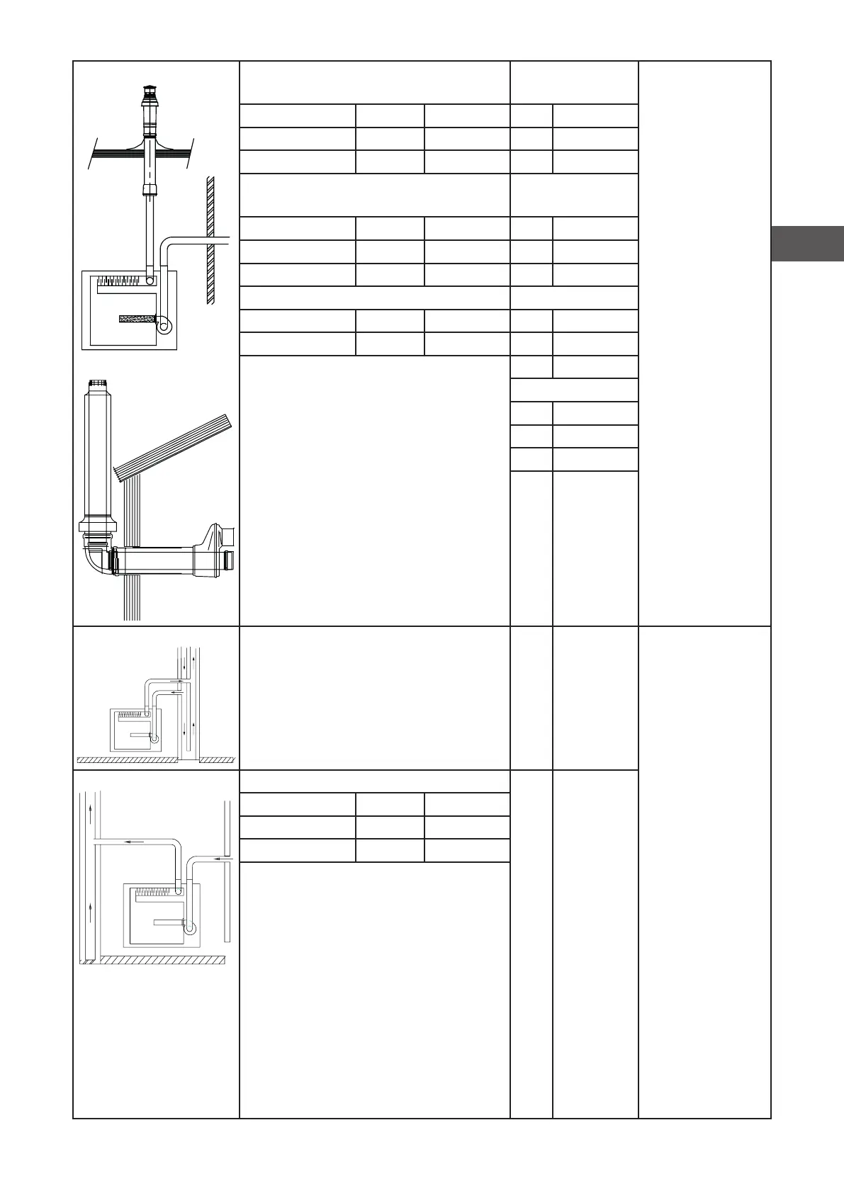
C53 RVS Dakdoorvoer PE verlengpijp
L=500
15/25/35/40 80/125 5990557 80 5989205
60/80/100 100/150 5990561 100 5989206
135/150/200 130/200 5990564 130 5989207
In combinatie met Geveldoorvoer PE verlengpijp
L=1000
15/25/35/40 5990511 80 5989210
60/80/100 5990512 100 5989211
135/150/200 5990513 130 5989212
OF PE Bocht 45°
15/25/35/40 0703100 80 5989224
60/80/100 0703101 100 5989233
130 5989234
PE Bocht 90°
80 5989225
100 5989236
130 5989237
C43 C43: Minimale
inwendige opper-
vlakte van een
ronde gemeen-
schappelijke
afvoerleiding AV,
zie tabel [5]
Alleen
toepasbaar indien
de gezamenlijke
rookgasafvoer
voldoende
natuurlijke trek
heeft: Het toestel
beschikt niet
over een interne
terugslagklep.
Condensaat
mag niet vanuit
de gezamenlijke
rookgasafvoer
in het toestel
terugstromen.
C83 Geveldoorvoer
15/25/35/40 5990511
60/80/100 5990512
135/150/200 5990513

Related product manuals