EasyManua.ls Logo

Mark GS+ - Page 78

Mark GS+
204 pages
Print Icon
To Next Page IconTo Next Page
To Next Page IconTo Next Page
To Previous Page IconTo Previous Page
To Previous Page IconTo Previous Page
Loading...
78
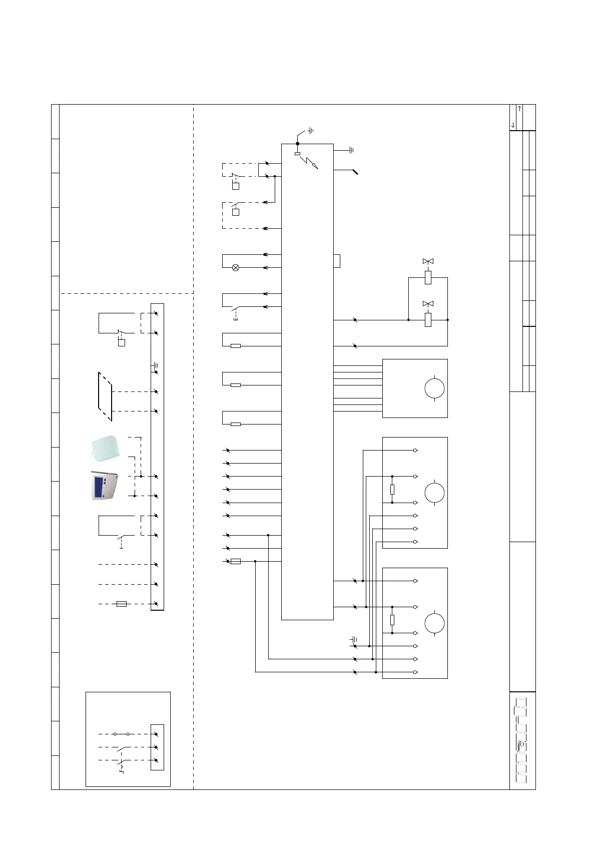
11.0 Elektrisch schema GS+ 15 - 80 EC
Voor G+: zie binnenzijde van het toestel.
1 2 3 4 5 6 7 8 9 10 11 12 13 14 15 16 17 18 19 20
GS+ 15-80
EC-fan 230V
Get.
Gec.
Electrisch schema
J.W.
TvD
Datum
Norm
28-1-2022
Schema
nummer
Groep
Art.nr.
WLV Type
Versie
WLV-012220-NL
GS+
1.1
1
k l i m a a t t e c h n i e k
R
Argus 864MN
Ts = 5sec
Tp = 30sec
Voeding
Ruimtetemperatuurvoeler digitaal (optioneel)
Resetknop
Aan/uit schakelaar (optioneel)
Ruimtethermostaat digitaal
Verbrandingslucht ventilator
Ionisatiestaaf
Storingslamp
Gasklep
Zekering
-
-
-
-
-
-
-
-
-
TT3
S2
S1
RT
VLV
IS
H1
GV1,GV2
F1,F2
1˜ 230V / 50Hz
WerkschakelaarWS -
TT1
TT2
-
-
Temperatuurvoeler directe omgeving toestel
Systeem / maximaal temperatuursensor
PE
Drukverschil schakelaar filter (indien van toepassing)-PF
Externe aansluitingen
RT TT3
Maximaal 8
toestellen
BUS
optioneel
Ventilatormotor 1VM1 -
Ventilatormotor 2 (GS+80)-VM2
Voor toestellen met 2 motoren
Condenswatersensor (optioneel)-W
optioneeloptioneel
(GS+80)
*
*
GND
0-10V/
PWM
+10VdcPENL GND
0-10V/
PWM
+10VdcPENL
1
NPEL1
GV1 GV2
IS
T2
2
S1
01
J2-1
J2-3
J2-2
J16-7
J16-6
J5-10
J5-2
J5-12
J5-4
TT1
J5-11
J5-3
TT2.1
J13-2
J5-9
J5-1
J20-4
J20-3
1NPEL 3 42
+
-
H1S2
13 14
J13-4
J13-3
J12
J18-2
J18-1
5 6
F2
6.3A
PE
PE
L
L1
aansluiting via werkschakelaar
1
2
WS
N
N
3
4
3 4 5 6NPEL
F1
16A
2 41 3
J5-14
J5-6
TT2.2
J13-5
J13-6
VLV
L
N
-
HALL
+
PWM
1~
M
J9-2
J9-3
J9-4
J9-5
J9-6
J9-7
PE J9-1
7 8
W
J16-8
J16-1
87
PF
P
W
J16-4
11 12
VM1
1~
M
109
J20-2
J20-1
10KΩ 10KΩ
VM2
1~
M

Related product manuals