EasyManua.ls Logo

Mark GS+ - Page 89

Mark GS+
204 pages
Print Icon
To Next Page IconTo Next Page
To Next Page IconTo Next Page
To Previous Page IconTo Previous Page
To Previous Page IconTo Previous Page
Loading...
89
C33 Kolano 45° wykonane
z aluminium
80 5990534
100 5990538
130 5990544
Kolano 45° wykonane
z aluminium
80 5990533
100 5990537
130 5990542
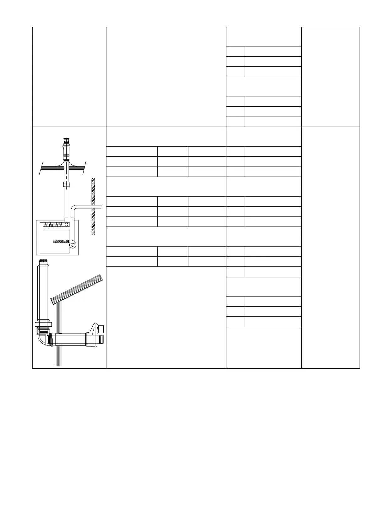
C53 System pionowego odprowadzenia
spalin wykonane ze stali nierdzewnej
Prostka wykonana z
polietylenu L=500
15/25/35/40 80/125 5990557 80 5989205
60/80/100 100/150 5990561 100 5989206
135/150/200 130/200 5990564 130 5989207
W połączeniu z poziomym systemem
odprowadzenia spalin
Prostka wykonana z
polietylenu L=1000
15/25/35/40 5990511 80 5989210
60/80/100 5990512 100 5989211
135/150/200 5990513 130 5989212
LUB
Kolano 45° wykonana
z polietylenu
15/25/35/40 0703100 80 5989224
60/80/100 0703101 100 5989233
130 5989234
Kolano 90° wykonana
z polietylenu
80 5989225
100 5989236
130 5989237

Related product manuals