EasyManua.ls Logo

Mark GS+ - Page 96

Mark GS+
204 pages
Print Icon
To Next Page IconTo Next Page
To Next Page IconTo Next Page
To Previous Page IconTo Previous Page
To Previous Page IconTo Previous Page
Loading...
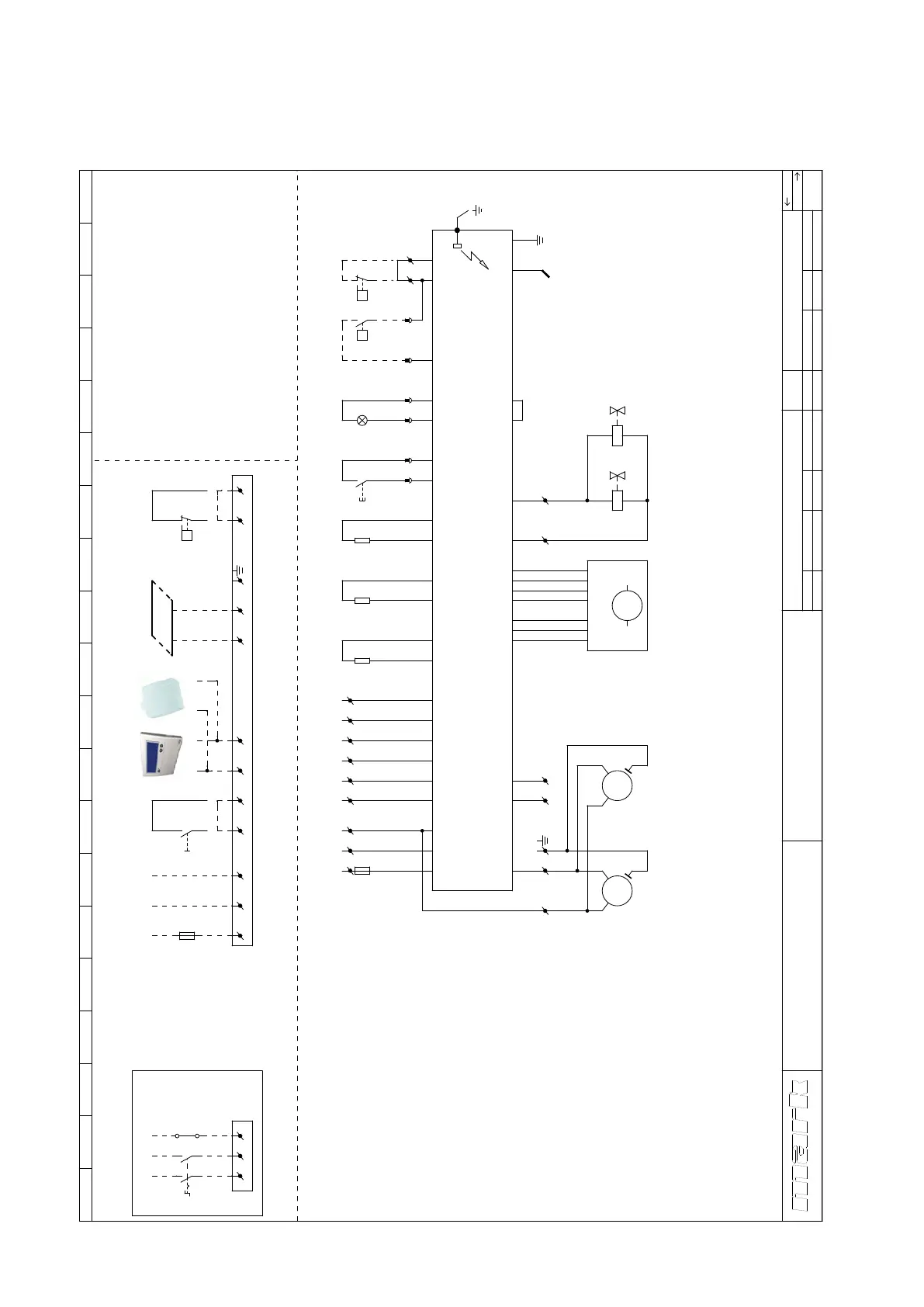
8.0 Schemat elektryczny GS+ 15 - 80
W przypadku urzadzenia G+: patrz wewnatrz urzadzenia.
96
1 2 3 4 5 6 7 8 9 10 11 12 13 14 15 16 17 18 19 20
GS+ 15-80
Get.
Gec.
Schemat elektrycny
J.W.
TvD
Data
Norm
28-1-2022
Rysunek
numer
Grupa
Art.nie.
WLV Typ
Wersja
WLV-012200-PL
GS+
1.1
1
c l i m a t e t e c h n o l o g y
R
Argus 864MN
Ts = 5sec
Tp = 30sec
Zasilanie
Elektroniczny czujnik temperatury pomieszczeniowej (opcja)
Kasowanie / Przycisk reset
Przycisk on/off (opcja)
Elektroniczny termostat pomieszczeniowy
Wentylator powietrza do spalania
Elektroda jonizacyjna
Lampa sygnalizująca uszkodzenie
Zawór elektromagnetyczny gazowy
Bezpiecznik
-
-
-
-
-
-
-
-
-
TT3
S2
S1
RT
VLV
IS
H1
GV1,GV2
F1,F2
1˜ 230V / 50Hz
Wyłacznik serwisowyWS -
TT1
TT2
-
-
Czujnik pomiaru temperatury przy urządzeniu
Strefowy / maksymalnej czujnik temperatury
PE
Presostat zabrudzenia filtra (jeżeli używany)-PF
Podłączenia zewnętrzne
RT TT3
Maksymalnie
8 urządzeń
BUS
opcja
Silnik wentylatora 1VM1 -
Silnik wentylatora 2 (GS+80)-VM2
Dla urządzenia z dwoma wentylatorami
Czujnik kendensacyjny (opcja)-W
opcjaopcja
(GS+80)
*
*
1
NPE
11
L1
12
GV1 GV2
IS
T2
2
S1
01
J2-1
J2-3
J2-2
J16-7
J16-6
J5-10
J5-2
J5-12
J5-4
TT1
J5-11
J5-3
TT2.1
J13-2
J5-9
J5-1
J20-4
J20-3
J7-4
1NPEL 3 42
+
-
H1S2
13 14
J13-4
J13-3
J12
J18-2
J18-1
5 6
F2
6.3A
PE
PE
L
L1
Wyłacznik serwisowy
1
2
WS
N
N
3
4
3 4 5 6NPEL
F1
16A
2 41 3
J5-14
J5-6
TT2.2
J13-5
J13-6
VLV
L
N
-
HALL
+
PWM
1~
M
J9-2
J9-3
J9-4
J9-5
J9-6
J9-7
PE J9-1
109
J20-2
J20-1
VM1
1~
M
VM2
1~
M
7 8
W
J16-8
J16-1
87
PF
P
W
J16-4

Related product manuals