EasyManua.ls Logo

Mark GSX - Combustion Air

Mark GSX
32 pages
Print Icon
To Next Page IconTo Next Page
To Next Page IconTo Next Page
To Previous Page IconTo Previous Page
To Previous Page IconTo Previous Page
Loading...
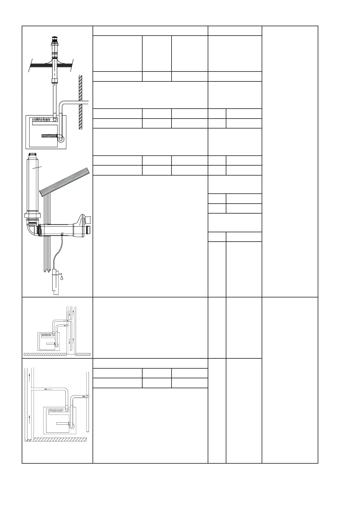
8
C53
Max. 3 m
Single ue set vertical Combustionair C53: The
condensate must
be discharged
efciently,
according to
the applicable
national
regulations.
20/35 80/125 5990556 Stainless steel
or ALU
Extension pipe
(see above)
55/75/90 100/150 5990560 OR
In combination with
single ue set horizontal
Polyethylene
Extension pipe
L=500
20/35 5990511 80 5989205
55/75/90 5990512 100 5989206
OR Polyethylene
Extension pipe
L=1000
20/35 0703100 80 5989210
55/75/90 0703101 100 5989211
Polyethylene
Bend 45°
80 5989224
100 5989233
Polyethylene
Bend 90°
80 5989225
100 5989236
C43 C43: Minimum
internal area of a
round common
drain pipe AV,
see table [5]
Applicable only
if the combined
ue gas system
has sufcient
natural draft: the
unit does not
have an internal
non-return valve.
Condensate is
not allowed to
ow back from
the ue system
into the unit.
C83 Single ue set horizontal
20/35 5990511
55/75/90 5990512

Related product manuals