EasyManua.ls Logo

Marvel 30iMT - Branchement de Larrivée Deau; Alimentation en Eau

Marvel 30iMT
56 pages
Print Icon
To Next Page IconTo Next Page
To Next Page IconTo Next Page
To Previous Page IconTo Previous Page
To Previous Page IconTo Previous Page
Loading...
NOTE
REMARQUE




 



 


 
 

 

 

 -


 
-

 









-
teur



















8
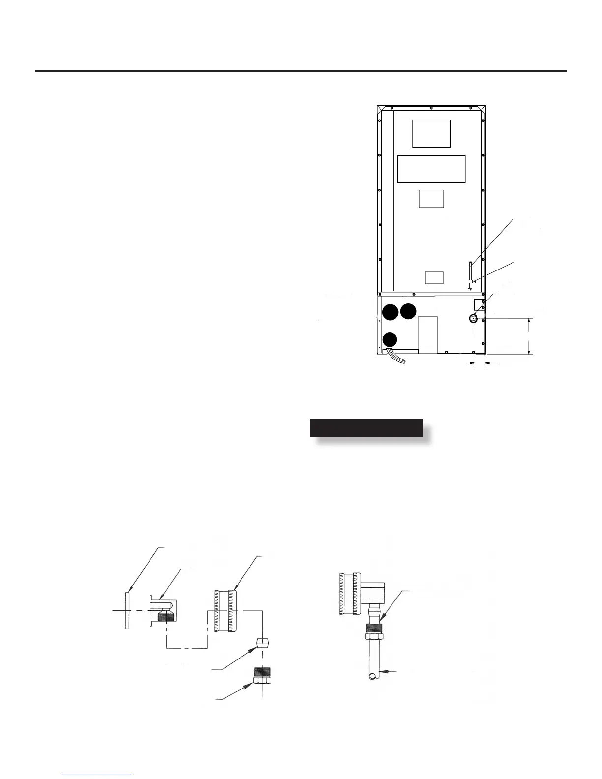
BRANCHEMENT DE LARRIVÉE D’EAU







Table of Contents

Other manuals for Marvel 30iMT

Related product manuals