EasyManua.ls Logo

Marvel 30iMT - Connecting the Water Supply; Water Supply Requirements; Water Filter Recommendations

Marvel 30iMT
56 pages
Print Icon
To Next Page IconTo Next Page
To Next Page IconTo Next Page
To Previous Page IconTo Previous Page
To Previous Page IconTo Previous Page
Loading...
NOTE

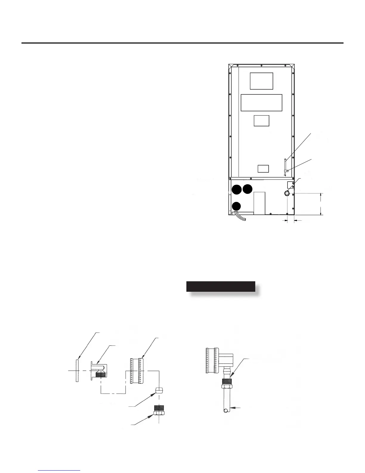
CONNECTING THE WATER SUPPLY
Water Supply



 


 


 
 

 

 
 
NOTE: DO NOT USE A SELF-PIERC-
ING TYPE VALVE.
 

 



-




8
-


-























Table of Contents

Other manuals for Marvel 30iMT

Related product manuals