EasyManua.ls Logo

Marvel MLNP115-IS01A - Page 14

Marvel MLNP115-IS01A
24 pages
Print Icon
To Next Page IconTo Next Page
To Next Page IconTo Next Page
To Previous Page IconTo Previous Page
To Previous Page IconTo Previous Page
Loading...
14
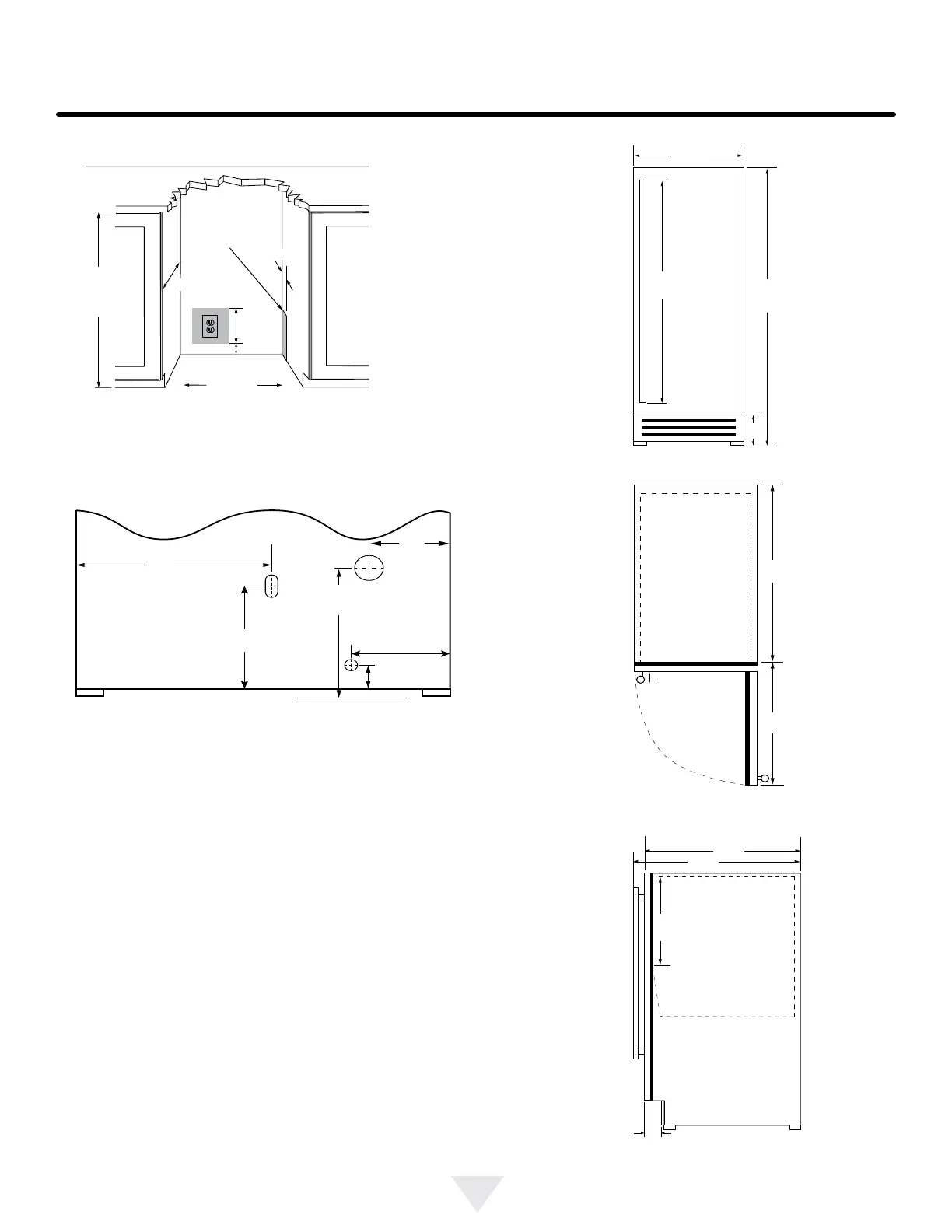
CUTOUT & PRODUCT DIMENSIONS
CUTOUT DIMENSIONS - MLNP115
PRODUCT DIMENSIONS
REAR
1 1⁄₂" (38 mm)
7"
(178 mm)
15 1⁄4"*
(387 mm)
34 1⁄₄"
(870 mm)
to
35 1⁄₄"
(889 mm)
Preferred location
for electrical outlet
is in an adjacent
cabinet.
24"
(610 mm)
5⁄8"
(16 mm)
Figure 31
2”
(51 mm)
4”
(102 mm)
Water Line
Drain
7
½
(191 mm)
3
⁄
(80 mm)
4”
(102 mm)
7
½
(191 mm)
Power Cord
6 ft (183 cm)
Figure 32
FRONT
TOP
SIDE
14 ⁄”
(379 mm)
3 ½”
(89 mm)
28”
(711 mm)
33 ⁄
to 34 ⁄”
(855 mm
to
881 mm)
Figure 33
1 ⁄”
(48 mm)
17 ½”
(445 mm)
21 ⁄”
(535 mm)
Figure 34
10 ⁄”
(260 mm)
22 ⁄”
(583 mm)
24 ⁄”
(630 mm)
4
⁄
“ (111 mm)
Figure 35

Other manuals for Marvel MLNP115-IS01A

Related product manuals