EasyManua.ls Logo

Master cool MCP44 - Installation in Window; Installation in Wall

Master cool MCP44
28 pages
Print Icon
To Next Page IconTo Next Page
To Next Page IconTo Next Page
To Previous Page IconTo Previous Page
To Previous Page IconTo Previous Page
Loading...
5
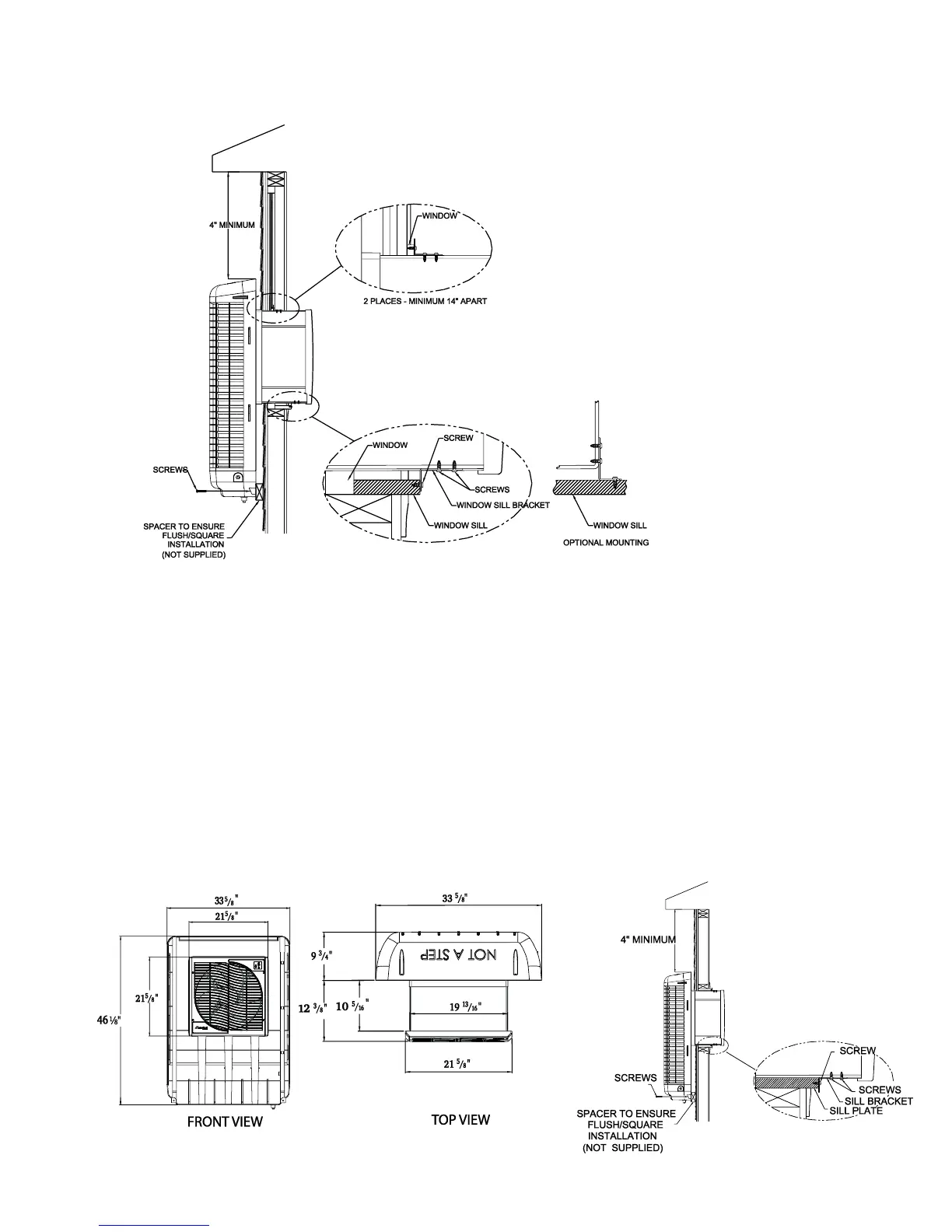
Installation in Window
2. Closing the window may help hold the unit in place during the following steps – Push the unit into the window
until the bottom is flush with the outside wall or spacer (not supplied) as shown in the illustration.
3. Make sure unit is level. From the interior, locate the two tracks on the bottom of the fan assembly. Drill
pilot holes as necessary and install the two window sill brackets as shown in illustration.
4. Secure the top of the fan housing to the window frame with two additional brackets and screws.
5. From the outside, secure the unit to the exterior wall (or spacer) with two screws at the base of the back
cover (as shown in illustration.) Complete the installation of the exterior portion with two screws at the
top of the back media guard.
6. With the unit now installed in the window, attach one accordion spacer to each side of the fan assembly
using the adhesive backed edges. Short screws(not included) can be used for a more secure installation.
(Make sure screws do not interfere with fan blade)
7. Once accordion spacers are installed, seal any gaps around the units with silicone or all weather caulk.
Installation in Wall
This cooler is approved for in-wall installation. Contact a licensed contractor for having the cooler installed in an
outside wall.
1. Remove screen and make sure window is
opened to its maximum height. From the
exterior of the window, slide the fan assembly
section into the window. Have the person on
the interior adjust the exact placement of the
unit for aesthetics and correct lengths of the
two accordion spacers (included).
Note: After identifying the position for
installation, place a bubble level on top of the
unit and make adjustments to ensure the unit
will be level when installation is complete. It
is recommended to verify unit is level at
various points during installation.

Related product manuals