EasyManua.ls Logo

Master Spas Trainer 12 - WIRING SCHEMATIC; GFCI Breaker Wiring Diagram

Master Spas Trainer 12
64 pages
Print Icon
To Next Page IconTo Next Page
To Next Page IconTo Next Page
To Previous Page IconTo Previous Page
To Previous Page IconTo Previous Page
Loading...
16
DO NOT DIVE.
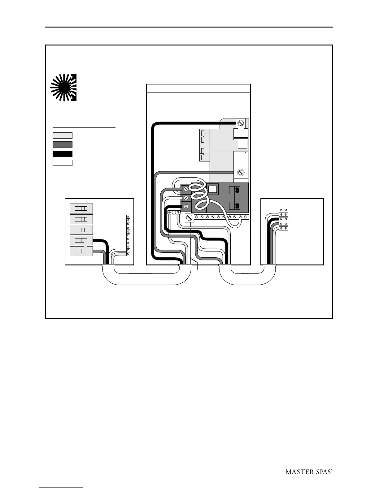
WIRING SCHEMATIC
WIRING FOR MODELS THAT REQUIRE A SEPARATE GFCI BREAKER
ON
OFF
ON
OFF
ON
OFF
ON
OFF
ON
OFF
50 5050
TEST
50
1
2
3
4
5
WHITE (NEUTRAL)
BLACK (HOT)
RED (HOT)
GREEN (GROUND)
Instruments
Bal boa
Incorporated
Wire Key
House Breaker Box
G.F.C.I Breaker Box
Spa System Box
Green (Ground)
Red (Hot)
Black (Hot)
White (Neutral)
NOTE: For a 240 V
dedicated hook-up, the
white neutral wire is
not required between
the G.F.C.I. and the
system box.
GRN
GRN (GROUND)
RED (HOT)
BLK (HOT)
BLK (HOT)
RED (HOT)
RED (HOT)
WHT (NEUTRAL)
WHT
WHT
BLK (HOT)
GRN (GROUND)
TB1
IDF00007.mac 6/17/97
* Actual wiring of GFCI will vary by manufacturer of GFCI. The GFCI shown is a Square D. Improper
wiring of GFCI may result in permanent damage to swim spa system box. Repair / replacement of
swim spa system box is not covered under warranty when damage results from improper wiring.
Junction Box

Related product manuals