EasyManua.ls Logo

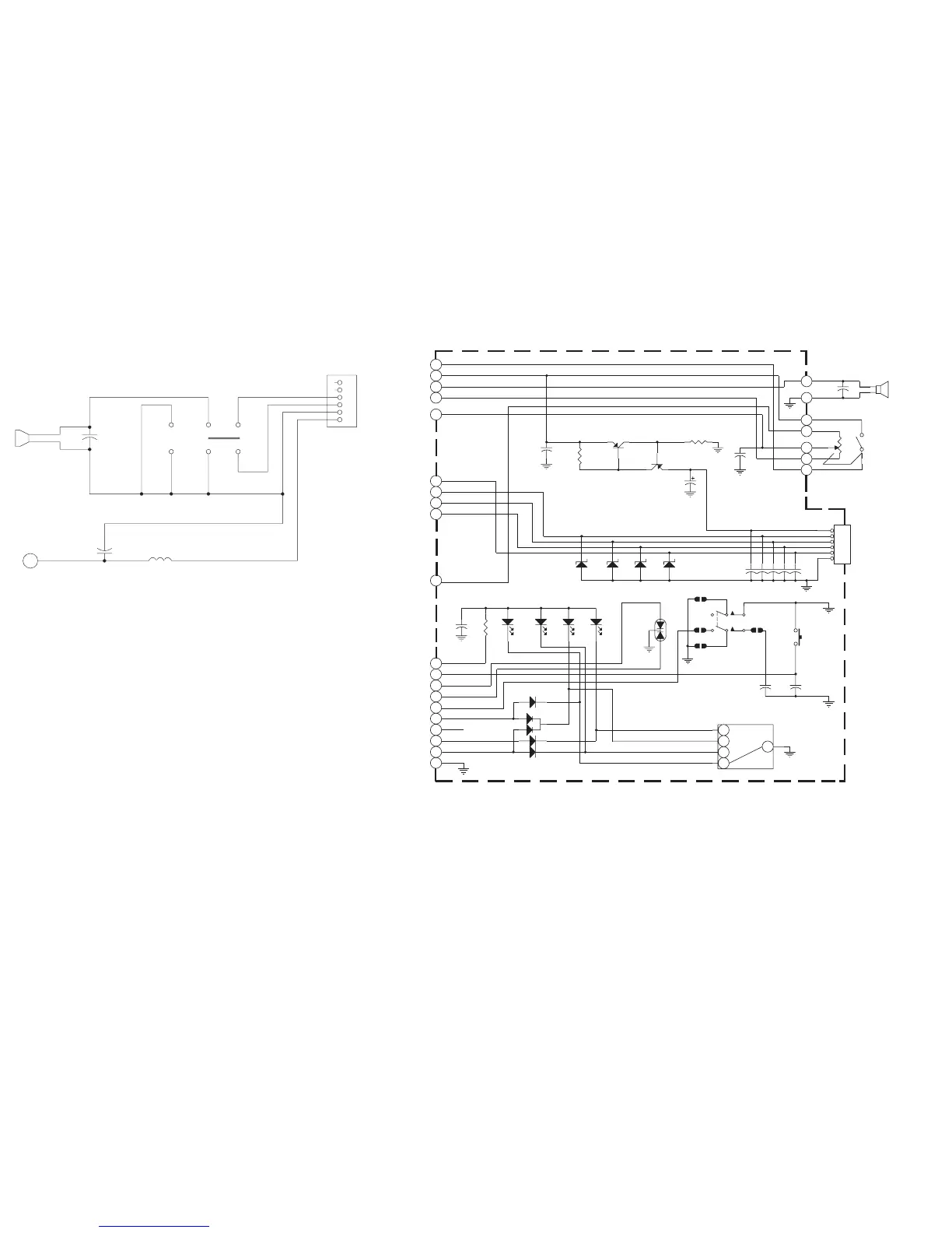
Maxon FM Mobile radio SM-2000 - MA-4472 Microphone Schematic; SM-2000 Control Head Schematic

Maxon FM Mobile radio SM-2000
74 pages
To Next Page IconTo Next Page
To Next Page IconTo Next Page
To Previous Page IconTo Previous Page
To Previous Page IconTo Previous Page
Loading...
Page-60-
December 98
2
6
4
1
3
5
+
-
CORD901
TX (YELLOW)
AUDIO GND (SHIELD)
MON/HOOK (BLACK)
N/C
B+ (RED)
AUDIO (WHITE)
GROUND (GREEN)
N/C
MIC901
MIC
C903
470P
RX
TX
PTT SWITCH
TEL PLUG
L901
1MH
C901
0.001(M)
HOOK
SP1
4OHM
4W
SW2
SW1
VRT2
GND
SP
C821
0.001
R821
22
CURRENT LIMITER
R822
4.7K
Q821
KRA1504S
C808
47P
C815
470P
SW POW ER
VR801
10KR
1
2
3
4
5
6
CON801
MIC
13.8
Q822
KRA1504S
C823
10/25(E)
HANGER
MIC
PTT
CS
VRT 1
D807
5.1V
D808
5.1V
D810
5.1V
D811
5.1V
CS
HANGER
MIC
PTT
C801-805
47P
C806
47P
LK4
LK3
LK2
LK1
C809
47P
SW3
AUX
SW4
MONITOR
LED 5
TX/CALL/BUSY
LED4
R801
470
LED1
LED2
LED3
MONITOR
8V
C807
47P
BCD 8
BCD 1
CALL
LED RED
LED GRN
BCD 4
BCD 2
D801
KDS193
D803
KDS193
D804
KDS184
D802
KDS193
1CH
2CH
3CH
4CH
SW405
CH SW
GND
SM-2000
CONTROL HEAD SCHEMATIC
770-050-0003 Rev. B
SM-2000
MA-4472 MICROPHONE SCHEMATIC
770-090-0003

Table of Contents

Related product manuals