EasyManua.ls Logo

Maytag MDE18MNAY - Page 36

Maytag MDE18MNAY
60 pages
Print Icon
To Next Page IconTo Next Page
To Next Page IconTo Next Page
To Previous Page IconTo Previous Page
To Previous Page IconTo Previous Page
Loading...
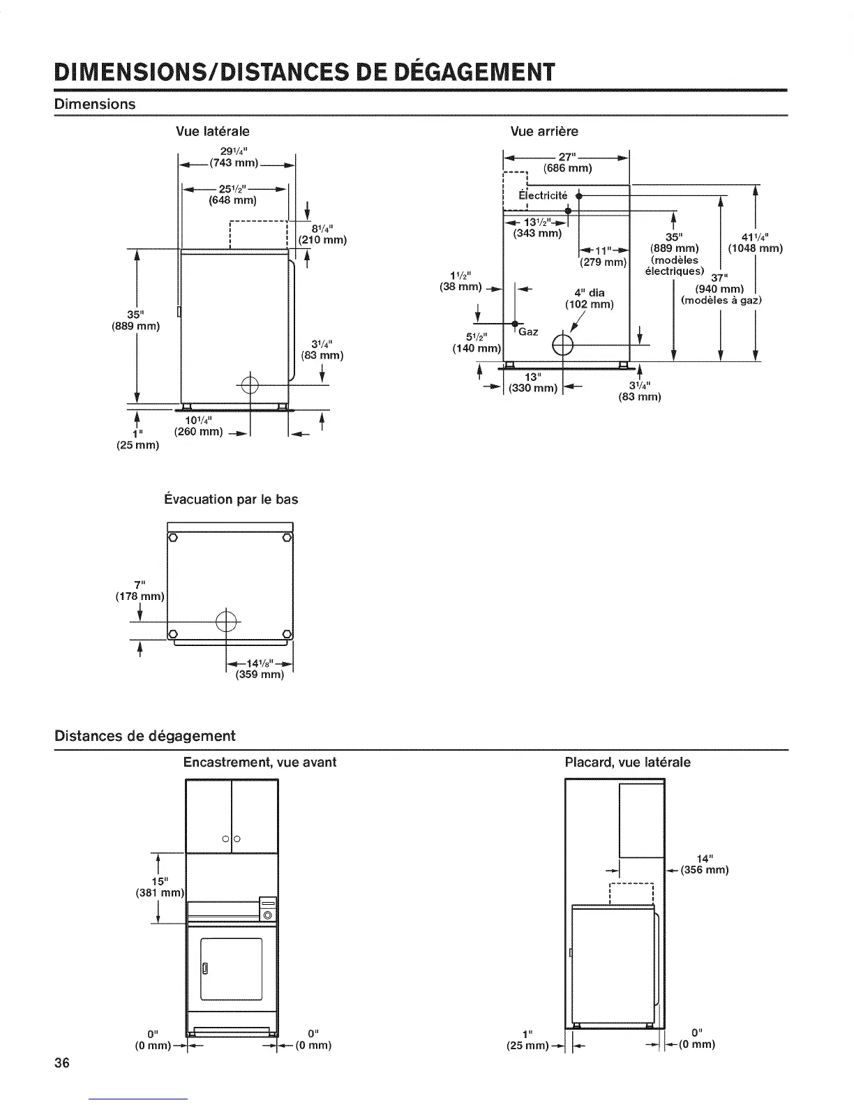
DIMENSIONS/DISTANCES DE DI '-GAGEMENT
Dimensions
[
35"
(889 ram)
t
1"
(25 ram)
Vue laterale
291/4''
.,I---- (743 ram) -----p.
251/2"
(648 ram)
, I (210 mm)
IOV4"
(260 ram)
31/4"
(83 mm)
Vue arriere
27"
..... (686 ram)
1 I
i
.i
Electricit_ _
__ ,LI
(343 ram) I
1_-11,,--_
(279 ram)
1V2'
(38 mm) -4_ I-,,1--
4" dia
I
I I (102 ram)
_1 (330 mm)I "_-- 3'/4"
(83 mm)
35"
(889 ram)
(modeles
electriques)
41'!,"
(1048 ram)
37"
(940 ram)
(modeles & gaz)
1,!
l_vacuation par le bas
7 II
(178 ram)
_ o
14V8"
(359 ram)
Distances de degagement
Encastrement, vue avant
t
15"
(381 ram)
0 II
(0 ram)--,
oo
'. L_
I ml
(25 ram)-,-
Placard, vue laterale
-4
I
J
14"
_- (356 mm)
0 II
_-(0 ram)
36