EasyManua.ls Logo

McCall MCCR1-S - Page 15

McCall MCCR1-S
28 pages
Print Icon
To Next Page IconTo Next Page
To Next Page IconTo Next Page
To Previous Page IconTo Previous Page
To Previous Page IconTo Previous Page
Loading...
15
McCall
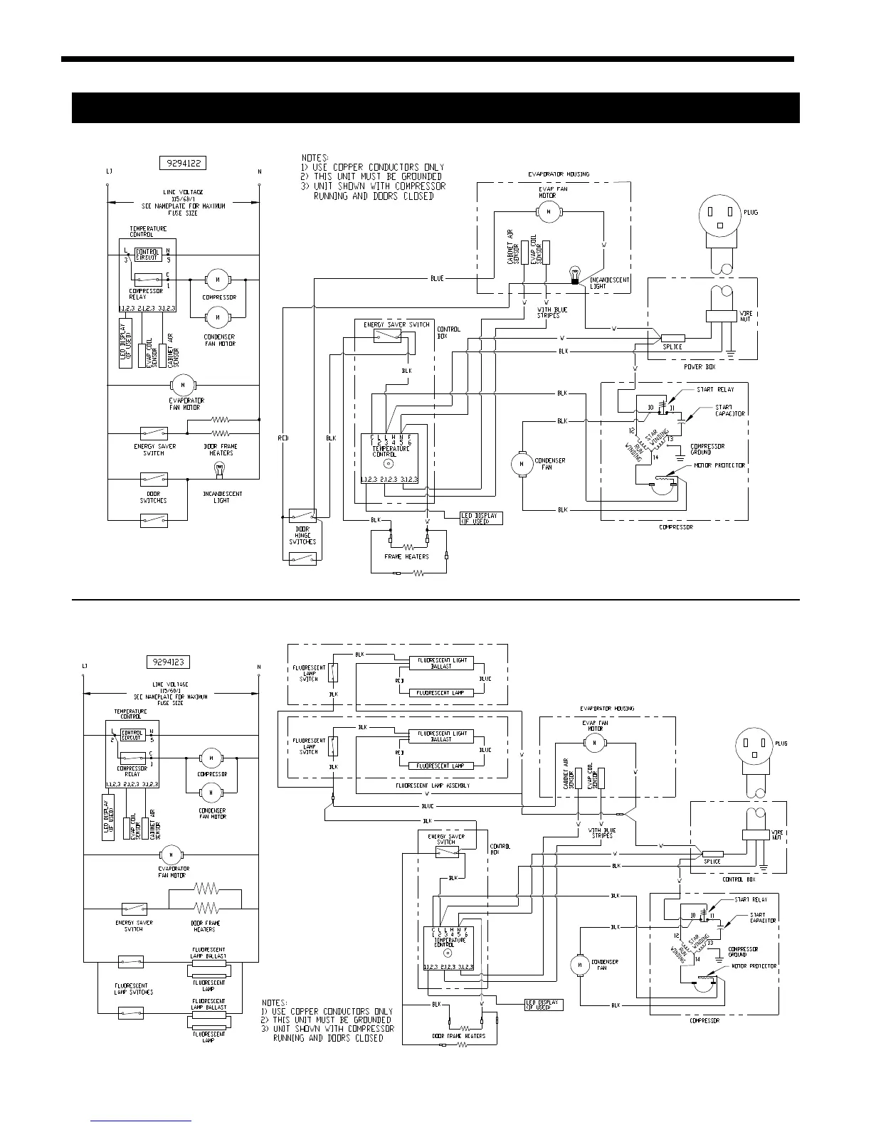
Refrigerator Wiring Diagrams
MCCR2 - Solid Doors
MCCR2, MCCR2-SL - Glass Doors

Related product manuals