EasyManua.ls Logo

McLean T43 - Design Data, Model Drawing

McLean T43
20 pages
Print Icon
To Next Page IconTo Next Page
To Next Page IconTo Next Page
To Previous Page IconTo Previous Page
To Previous Page IconTo Previous Page
Loading...
10-1008-145 Rev. 10 Page 3
T43 Series
6000-10000 Btuh (1756-2928 Watts) H x W x D: 43" (1092) x 15.75" (400) x 11" (279)
Full BTU/Hr @ Max Amb Shipping
Load Max Amb Temp Weight
Model Voltage Hz Amps Phase Temp
o
F/
o
C Lbs/Kgs
T43-0616-G15X 115 50/60 8.6 1 6310/6680 131/55 125/57
T43-0626-G15X 230 50/60 3.8 1 6520/6770 131/55 125/57
T43-0816-G15X 115 50/60 10.4/11.2 1 7900/8600 131/55 125/57
T43-0826-G15X 230 50/60 5.2/5.4 1 7400/8200 131/55 125/57
T43-1016-G15X 115 50/60 16/20 1 9670/10290 131/55 125/57
T43-1026-G15X 230 50/60 9.0 1 10040/10670 131/55 125/57
-X will be replaced with a three-digit number designating all desired options. Consult the factory for specific model
numbers.
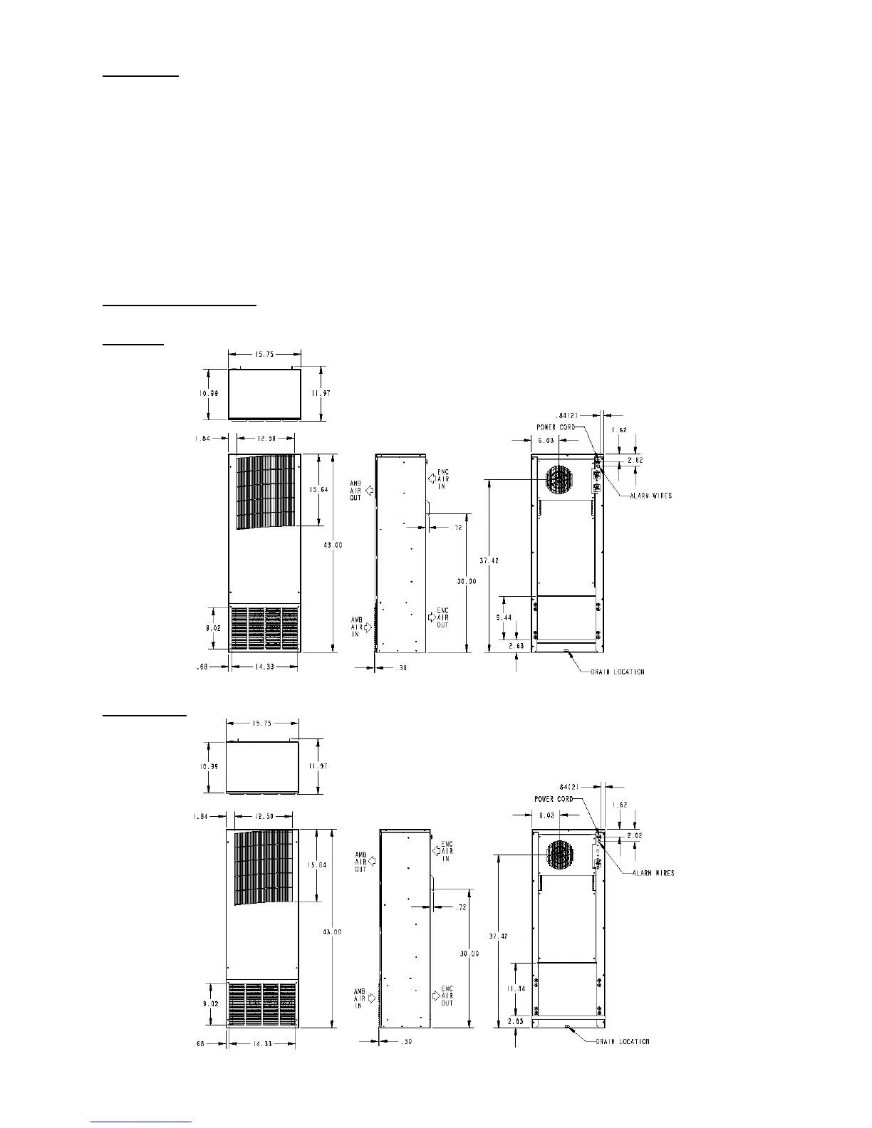
T43 Model Drawings
6K BTU
8-10K BTU

Related product manuals