EasyManua.ls Logo

McLean T43 - Inlet Air Filter Service

McLean T43
20 pages
Print Icon
To Next Page IconTo Next Page
To Next Page IconTo Next Page
To Previous Page IconTo Previous Page
To Previous Page IconTo Previous Page
Loading...
10-1008-145 Rev. 10 Page 7
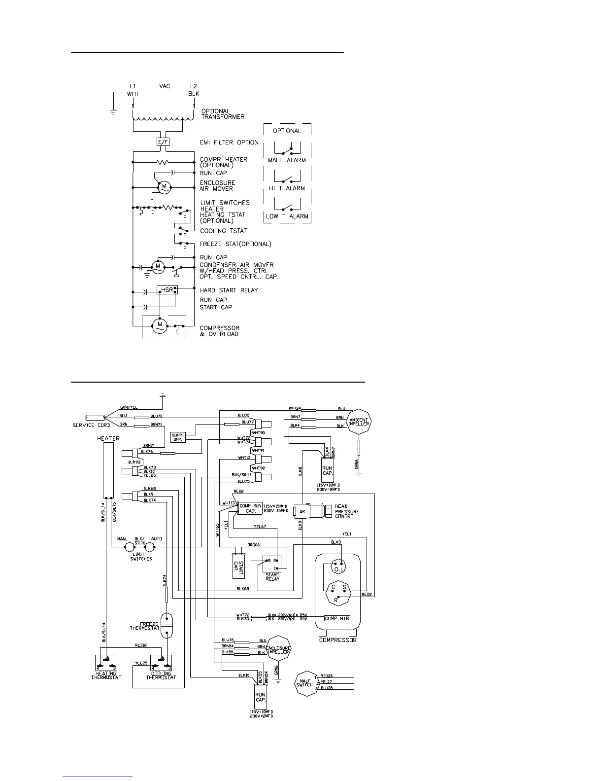
T43 Generic Schematic (actual unit options may vary)
T43 Generic Wire Diagram (actual unit options may vary)

Related product manuals