EasyManua.ls Logo

McLean T50 - Design Data, Model Drawing

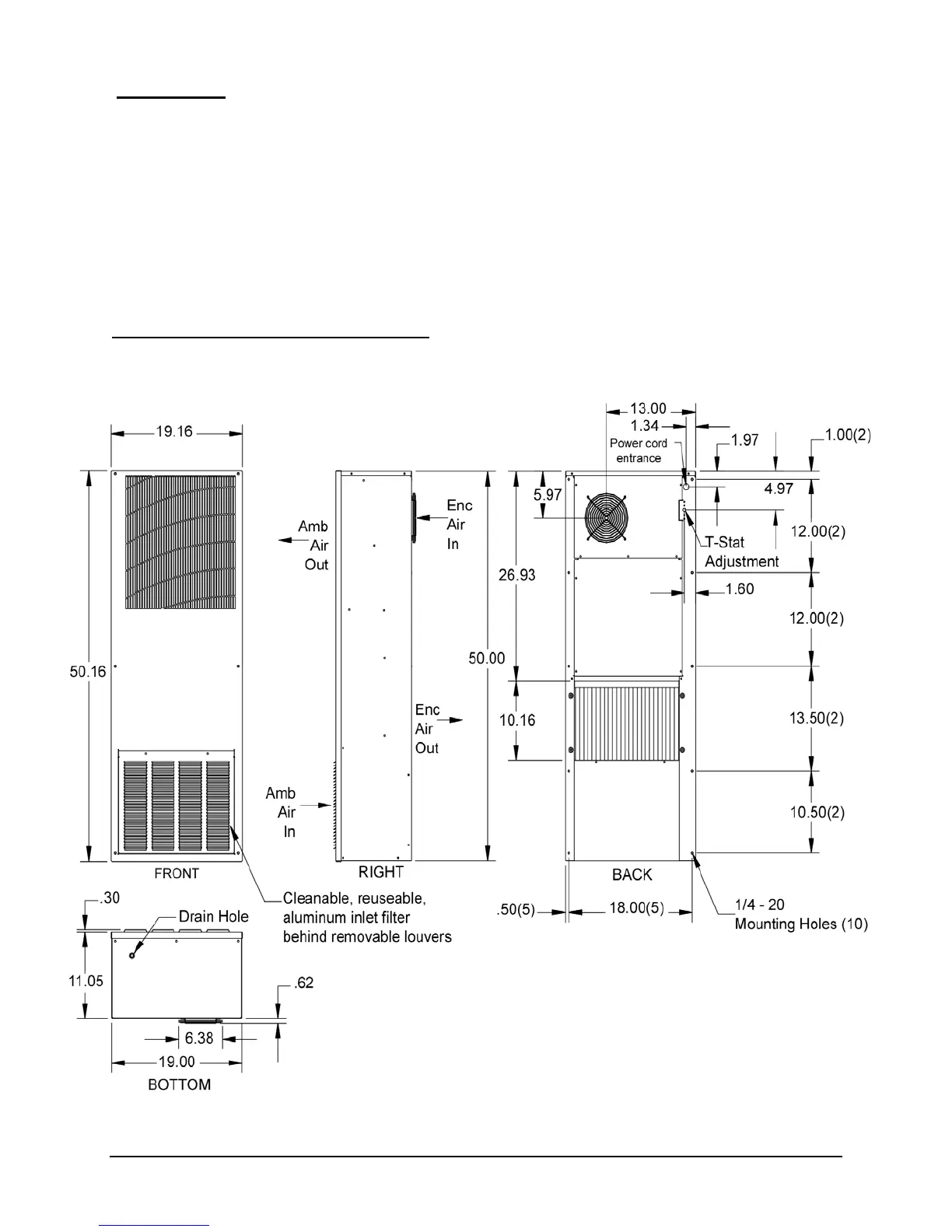
McLean T50
11 pages
Print Icon
To Next Page IconTo Next Page
To Next Page IconTo Next Page
To Previous Page IconTo Previous Page
To Previous Page IconTo Previous Page
Loading...
3 10-1008-214 rev 1
T50 Series
12000 BTU/Hr. (3516 Watts) H x W x D: 50" (1270) x 19" (483) x 11.35" (288)
Full BTU/Hr @ Max Shipping
Load Max Amb Amb Temp Weight
Model Voltage Hz Amps Phase Temp oF/oC Lbs/Kgs
T50-1226-GXXX 220/230 50/60 8.2/9.3 1 11000/12000 131/55 164/74.6
XXX will be replaced with a three-digit number designating all desired options. Consult
MAI for
specific model numbers.
T50 Model Drawing (Surface Mount)

Related product manuals