EasyManua.ls Logo

McQuay M5WM 015GR - Page 53

McQuay M5WM 015GR
118 pages
Print Icon
To Next Page IconTo Next Page
To Next Page IconTo Next Page
To Previous Page IconTo Previous Page
To Previous Page IconTo Previous Page
Loading...
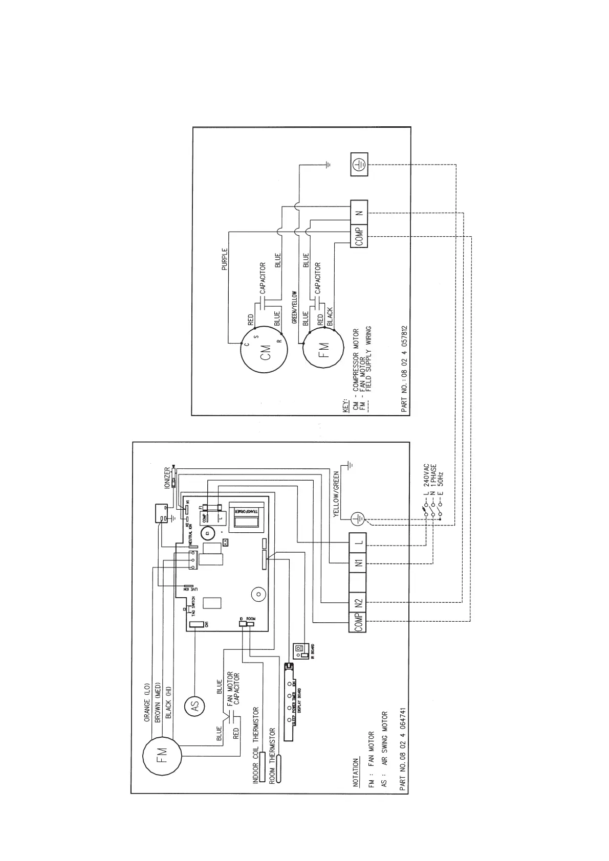
Cooling Only Models
Outdoor Unit
Model : MLC 015C
51
Indoor Unit
Model : MWM 015G (With Ionizer)

Related product manuals