EasyManua.ls Logo

McQuay M5WM 015GR - Page 54

McQuay M5WM 015GR
118 pages
Print Icon
To Next Page IconTo Next Page
To Next Page IconTo Next Page
To Previous Page IconTo Previous Page
To Previous Page IconTo Previous Page
Loading...
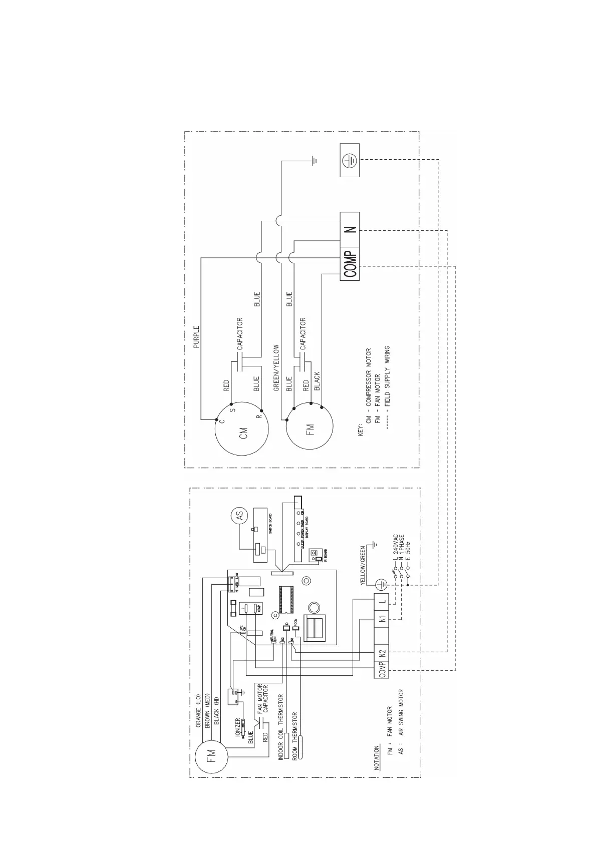
Cooling Only Models
Outdoor Unit
Model : MLC / M5LC 020C / 025C
52
Indoor Unit
Model : MWM / M5WM 020G / 025G (With Ionizer)

Related product manuals