EasyManua.ls Logo

McQuay MCM 020 D - Page 60

McQuay MCM 020 D
94 pages
To Next Page IconTo Next Page
To Next Page IconTo Next Page
To Previous Page IconTo Previous Page
To Previous Page IconTo Previous Page
Loading...
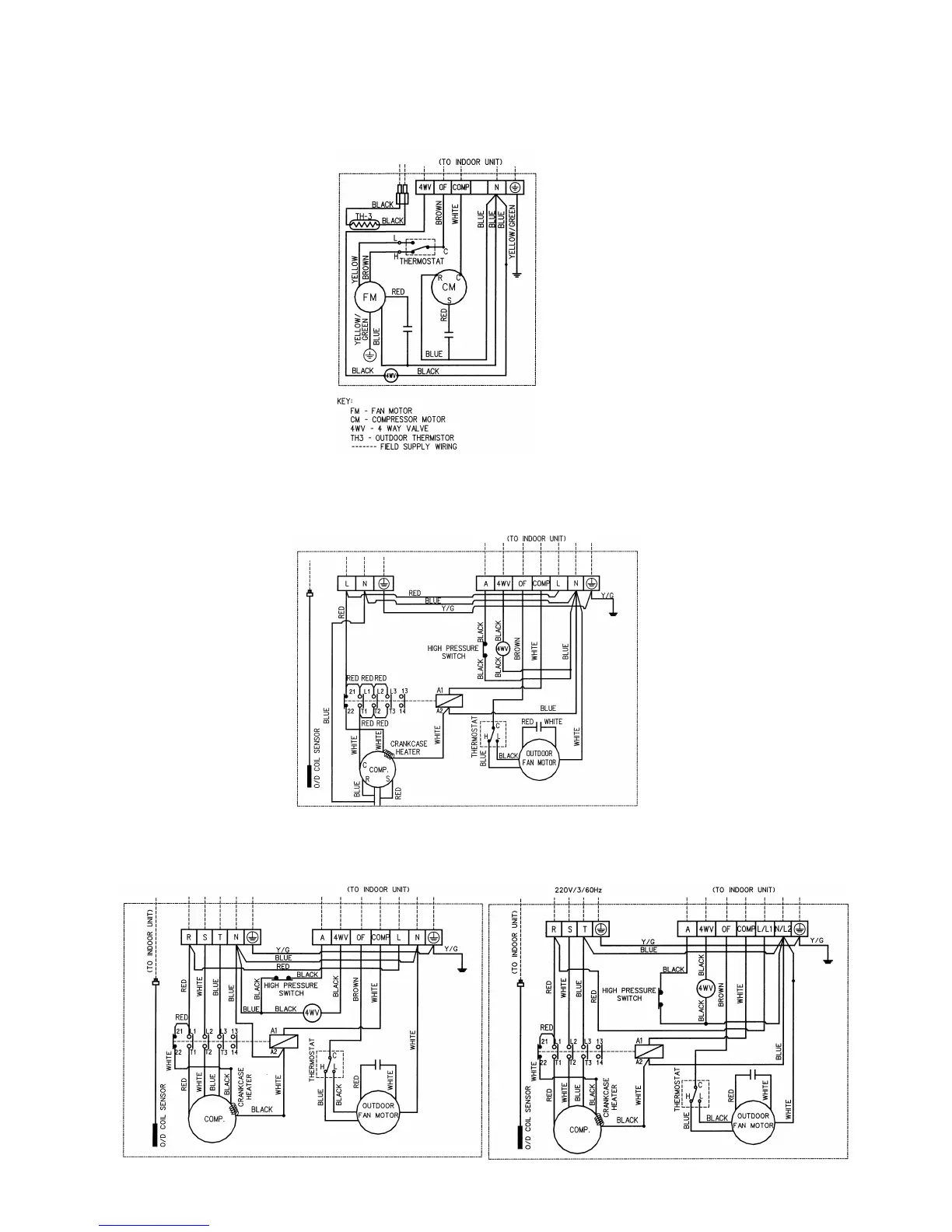
OUTDOOR UNIT
MODEL : MLC020/ 025BR (HEAT PUMP)
50HZ / 1 PHASE / 220 – 240V
OUTDOOR UNIT
MODEL : MLC030CR (HEAT PUMP)
50HZ / 1 PHASE / 220 – 240V, 60 HZ / 1 PHASE / 220V
OUTDOOR UNIT
MODEL : MLC040/ 050CR (HEAT PUMP)
50HZ / 3 PHASE / 380 – 415V, 60HZ / 3 PHASE / 220V
Page 59

Related product manuals