EasyManua.ls Logo

McQuay MCM 025 DR

McQuay MCM 025 DR
94 pages
To Next Page IconTo Next Page
To Next Page IconTo Next Page
To Previous Page IconTo Previous Page
To Previous Page IconTo Previous Page
Loading...
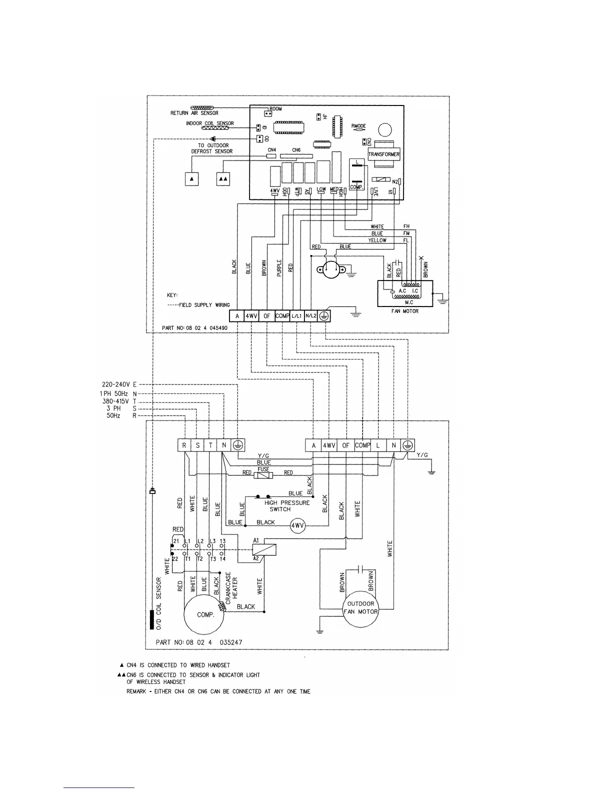
INDOOR UNIT
MODEL : MCM040/ 050DR
OUTDOOR UNIT
MODEL: MLC/ M4LC040/ 050CR
Page 52

Related product manuals