EasyManua.ls Logo

McQuay MCM 025 DR

McQuay MCM 025 DR
94 pages
To Next Page IconTo Next Page
To Next Page IconTo Next Page
To Previous Page IconTo Previous Page
To Previous Page IconTo Previous Page
Loading...
MCM061/ 062C
Figure C
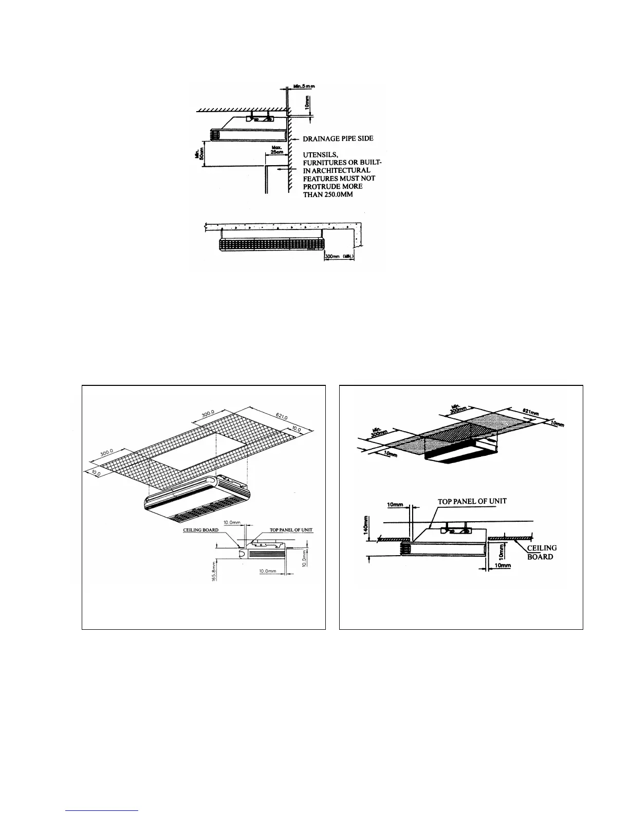
Provide the installation space as shown in Figure D.
MCM-D MCM061/ 062C
Figure D
Page 67

Related product manuals