Home
McQuay
Air Conditioner
MDS080B R
Page 27
McQuay MDS080B R - Page 27
31 pages
Manual
Save Page as PDF
To Next Page
To Next Page
To Previous Page
To Previous Page
Loading...
©2005 M
cQuay International
26
86
1690
1611
1510
912
1
6
350
4
2
0
8
1
5
50
1400
879
40
61
107
268
131
153
3
8
8
2
6
4
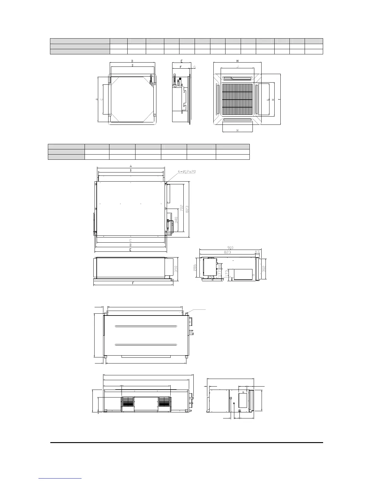
4-Φ13
MCK010, 015, 018, 020, 025, 030, 040,
050, 060T
Unit: mm
MODEL
A
B
C
D
E
F
G
H
I
J
K
L
M
MCK010/01
5/018/020T
820
875
548
820
278
250
28
9
30
930
642
622
555
555
MCK025/03
0/040/050/060T
820
875
548
820
363
335
28
9
30
930
642
622
555
555
MDB050, 060, 080, 100T
Unit: mm
MODEL
A
B
C
D
E
F
MDB050T
995
957
998
1032
1063
1230
MDB060T
1195
1157
11
98
1232
1263
1430
MDB080T
26
28
Table of Contents
Main Page
Table of Contents
2
Safety Precaution
3
Electrical Parameter
4
Installation Instruction
5
Outdoor Unit Installation
5
Installation of the Combined Outdoor Units
7
Indoor Unit Installation
8
Piping Installation
15
Wiring Connection
20
Air Leakage Test, Vacuum and Refrigerant Charge
24
Testing Running
25
Appendix A: Dimension of Indoor and Outdoor Units
31
Appendix B: R22 Piping Materials/Radial Thickness
31
Related product manuals
McQuay MDS030A
44 pages
McQuay MDS030AR
116 pages
McQuay MDS
84 pages
McQuay MDS100BR
44 pages
McQuay MDB075D
177 pages
McQuay MDB075B
163 pages
McQuay MDB100D
177 pages
McQuay MDB100B
163 pages
McQuay MDB150B1
163 pages
McQuay MDB200B2
163 pages
McQuay MDB250B2
163 pages
McQuay MLC050C
18 pages