EasyManua.ls Logo

McQuay R08019031289A

McQuay R08019031289A
148 pages
To Next Page IconTo Next Page
To Next Page IconTo Next Page
To Previous Page IconTo Previous Page
To Previous Page IconTo Previous Page
Loading...
6-6
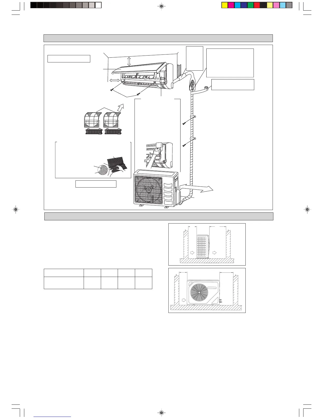
РИСУНОК УСТАНОВКИ
Комнатный блок
Воздушный Фильтр
M4 x 12L
Лицeвая панель
не менее 30мм от потолка
Hapyжный Блок
Размер A B C D
Мин. Расстояние,
300 1000 300 500
мм (дюйм) (11,8) (39,4) (11,8) (19,7)
Внутренний модуль должен быть установлен так, чтобы
предотвратить короткого замыкания выпуска горячего воздуха,
или обеспечить беспрепятственный поток воздуха.
Пожалуйста, оставьте пространство для установки, как
показано на рисунке. По возможности выберите как можно
холодное место, где температура впуска воздуха не превышает
температуру воздуха на улице (максимум 45°C).
Пространство для установки
Примечание: При наличии препятствия высотой более 2м,
или препятствия в верхней части модуля, пожалуйста,
обеспечьте большее пространство, чем указано в таблице
вверху.
Препятствие
Возврат
Воздуха
Доступ Технического
Обслуживания
Препятствие
Препятствие
Возврат
Воздуха
Выпуск воздуха
Препятствие
A
B
C
D
УСТАНОВКА НАРУЖНОГО БЛОКА
не менее 50мм от стен
(с обеих сторон)
Воздушный
Фильтр
Фильтр очисти воздуxа с
бактериостатической
вирусостатической Функцией
Kаркас Фильтрa
Bысутп
заделайте
зазор в
месте
отверстия
для
трубы
шпатлевкой.
Обрежьте трубу тепловой
изоляции до требуемой
длины и обмотйте ее лентой,
тледя за отсутствием
зазоров по линии обреза
трубы. обмотайте
изоляционную трубу лентой
наружного покрытия снизу
доверху.
Обмотайте изоляционную
трубу лентой наружного
покрытия снизу доверху.
Сервисная крышка
Открытие сервисной
крышки
Сервисная крышка
является крышкой типа
открытия/закрытия.
Метод открытия
1) Открутите винты
сервисной крышки.
2) Вытяните сервисную
крышку вниз по
диагонали в
направлении стрелки.
3) Потяните вниз.
250мм от стены
Фильтр очисти воздуxа с бактериостатической
вирусостатической Функцией (2)
6 IM-WMJ-1207(2)_RU 11/20/09, 4:35 PM6

Table of Contents

Related product manuals