EasyManua.ls Logo

McQuay WMC - Page 17

McQuay WMC
68 pages
Print Icon
To Next Page IconTo Next Page
To Next Page IconTo Next Page
To Previous Page IconTo Previous Page
To Previous Page IconTo Previous Page
Loading...
www.DaikinApplied.com 15 IOM 1210-1 • MAGNITUDE
®
MODEL WMC CHILLERS












































































































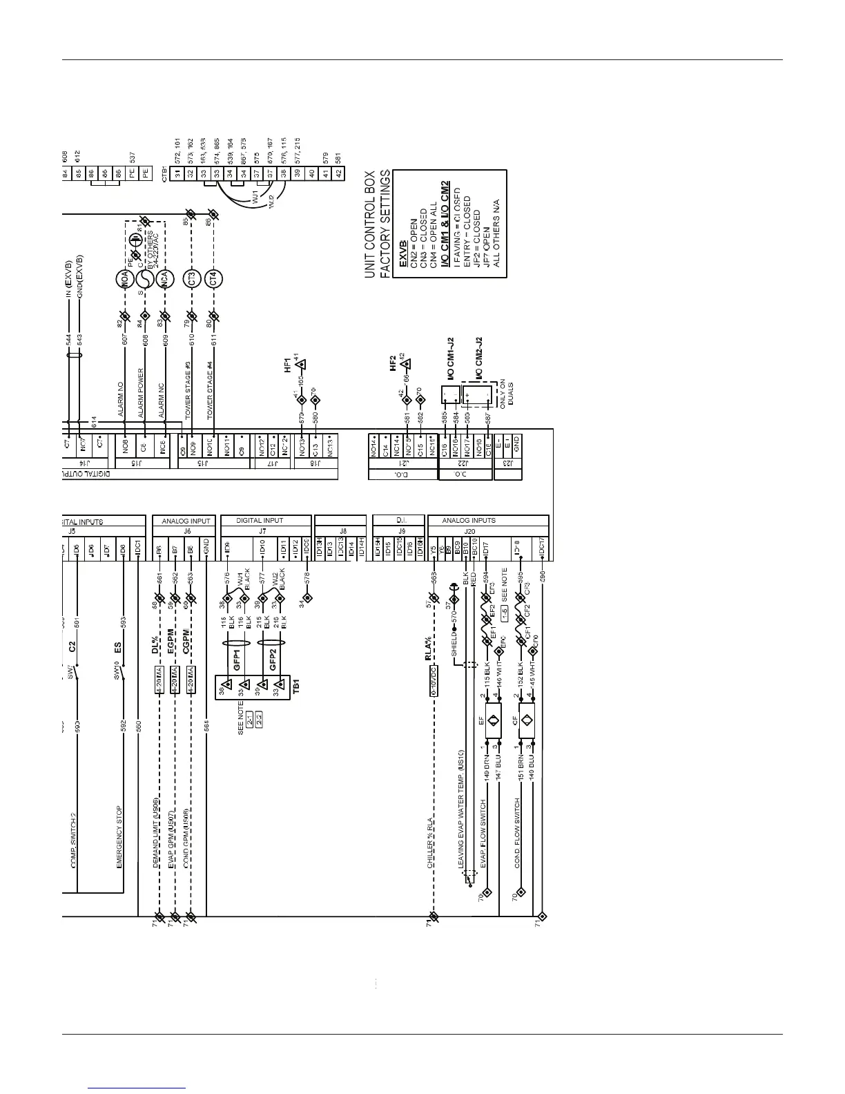
NOTES:


UNIT CONTROL BOX FACTORY ASSEMBLY:

JUMPERS
WJ1
AND
WJ2
MUST ONLY BE CONNECTED TO TERMINAL BLOCK
33
.


CHILLER FACTORY ASSEMBLY:

IF OPTIONAL
GFP1
IS USED THEN REMOVE JUMPER
WJ1
. OTHERWISE COMPLETE CONNECTION
WJ1
TO TERMINAL BOLOCK
38
.

IF OPTIONAL
GFP2
IS USED THEN REMOVE JUMPER
WJ2
. OTHERWISE COMPLETE CONNECTION
WJ2
TO TERMINAL BOLOCK
39
.

InsTallaTIon

Related product manuals