EasyManua.ls Logo

Midea 18K - Page 16

Midea 18K
54 pages
Print Icon
To Next Page IconTo Next Page
To Next Page IconTo Next Page
To Previous Page IconTo Previous Page
To Previous Page IconTo Previous Page
Loading...
Page 16
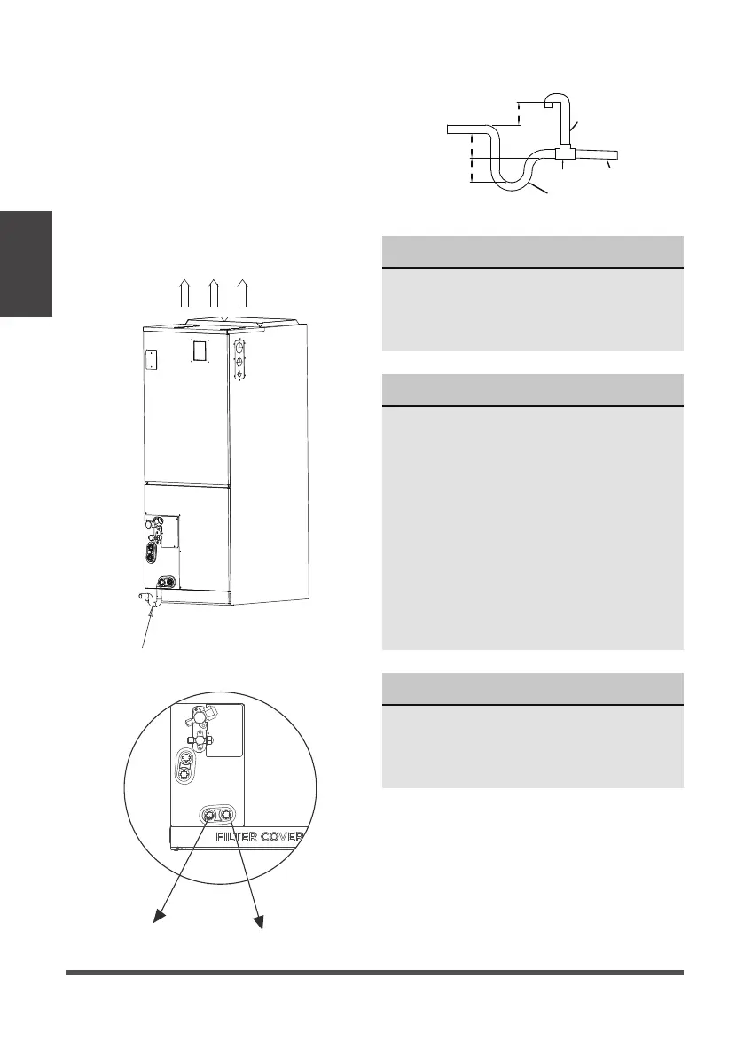
Vertical Installations
These units operate with a negative
pressure at the drain connections and a
drain trap is required.
The trap needs to be installed as close to
the unit as possible. Make sure the top of
the trap is below the connection to the
drain pan to allow complete drainage of
the pan.
Vent T
Anti-syphon
air vent
Lean over
1/50
Drain Trap
>50mm(2)
>50mm(2)
>50mm(2)
NOTICE
Horizontal runs must also have an
anti-siphon air vent (standpipe)
install ahead of the horizontal run to
eliminate air trapping.
NOTE ON DRAINPIPE INSTALLATION
The Figure shows how to trap
or plug all drains during vertical
discharge.
The Figure shows how to trap or
plug all drains during right-hand
discharge.
The seal plug are supplied as
accessories and should be screwed
tightly only by hand.
Incorrect installation could cause
water to flow back into the unit and
flood.
NOTICE
The drainpipe outlet should be at
least 5 cm (1.9 in) above the ground.
If it touches the ground, the unit may
become blocked and malfunction.
PRIMARY DRAIN
Main drain hole
Overow drain
h
PRIMARY DRAIN
Main drain hole
Over ow drain hole
VERTICAL DISCHARGE
Indoor Unit
Installation

Related product manuals