EasyManua.ls Logo

Midea 18K - Page 28

Midea 18K
54 pages
Print Icon
To Next Page IconTo Next Page
To Next Page IconTo Next Page
To Previous Page IconTo Previous Page
To Previous Page IconTo Previous Page
Loading...
 Page 28 
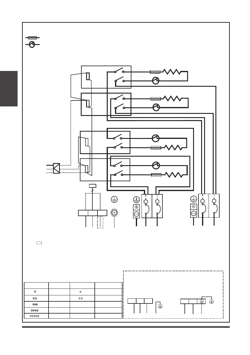
:thermal cut-out
:thermal link, self-resetting
20KW HEAT KIT
Round hole number Relay number
RELAY 1
RELAY 2
Circuit breaker number
RELAY 1
RELAY 2 CB2
Round hole number
RELAY 3
RELAY 4
CB1
3(S)
1(L1)
2(L2)
TYPE A
L1
L2
TYPE B
Y/G
NOTE2:
Please attach the nameplate to the cover of the
electric control box. All the round holes located
on the plate represent numbers. Please refer to
the Installation Manual for details.
NOTE1:
This symbol indicates the element is optional,
The wiring type of the actual unit shall prevail.
NOTE3: TO BE WIRED IN ACCORDANCE WITH NEC
AND LOCAL CODES.
Y/G
NOTE4: POWER A,B,C,D ARE DIFFERENT POWERS.
The wiring mode of power supply A shall be
based on the type of original wiring terminal of
AHU; for type A, S position must be connected to
the ourdoor S; for type B, S position shall not be
connected.
RED
YELLOW
BLACK
3
RED
RED
BLACK
BLACK
RED
RED
RELAY3
RELAY4
RELAY2
RELAY1
RED BLACK
BLACK
RED
BLUE
BLACK
RED
Aux-Heat
control signal
ī˜“
ī˜•ī˜—
ī˜“
ī˜•ī˜—
ī˜“
ī˜•ī˜—
ī˜“
ī˜•ī˜—
ī˜“
ī˜”
ī˜“
ī˜”
ī˜“
ī˜”
ī˜“
ī˜”
ī˜“
ī˜”
ī˜“
ī˜”
ī˜“
ī˜”
ī˜“
ī˜”
ī˜“
ī˜•ī˜—
ī˜“
ī˜•ī˜—
ī˜“
ī˜•ī˜—
ī˜•ī˜—
ī˜“
ī˜”
ī˜“
ī˜”
ī˜“
ī˜”
ī˜“
ī˜”
ī˜“
ī˜”
ī˜“
ī˜”
ī˜“
ī˜”
ī˜“
ī˜”
ī˜“
ī˜•
ī˜—
ī˜›
ī˜“
ī˜•
ī˜—
ī˜›
ī˜“
ī˜•
ī˜—
ī˜›
ī˜“
ī˜•
ī˜—
ī˜›
ī˜“
ī˜”
ī˜—
ī˜“
ī˜”
ī˜—
ī˜“
ī˜”
ī˜—
ī˜“
ī˜”
ī˜—
ī˜“
ī˜”
ī˜—
ī˜“
ī˜”
ī˜—
ī˜“
ī˜”
ī˜—
ī˜“
ī˜”
ī˜—
ī˜“
ī˜•
ī˜—
ī˜›
ī˜“
ī˜•
ī˜—
ī˜›
ī˜“
ī˜•
ī˜—
ī˜›
ī˜“
ī˜•
ī˜—
ī˜›
ī˜“
ī˜”
ī˜—
ī˜“
ī˜”
ī˜—
ī˜“
ī˜”
ī˜—
ī˜“
ī˜”
ī˜—
ī˜“
ī˜”
ī˜—
ī˜“
ī˜”
ī˜—
ī˜“
ī˜”
ī˜—
ī˜“
ī˜”
ī˜—
ī˜“
ī˜•
ī˜—
ī˜›
ī˜“
ī˜•
ī˜—
ī˜›
ī˜“
ī˜•
ī˜—
ī˜›
ī˜“
ī˜•
ī˜—
ī˜›
ī˜“
ī˜”
ī˜—
ī˜“
ī˜”
ī˜—
ī˜“
ī˜”
ī˜—
ī˜“
ī˜”
ī˜—
ī˜“
ī˜”
ī˜—
ī˜“
ī˜”
ī˜—
ī˜“
ī˜”
ī˜—
ī˜“
ī˜”
ī˜—
ī˜“
ī˜•
ī˜—
ī˜›
ī˜“
ī˜•
ī˜—
ī˜›
ī˜“
ī˜•
ī˜—
ī˜›
0
2
4
8
ī˜“
ī˜”
ī˜—
ī˜“
ī˜”
ī˜—
ī˜“
ī˜”
ī˜—
ī˜“
ī˜”
ī˜—
ī˜“
ī˜”
ī˜—
ī˜“
ī˜”
ī˜—
ī˜“
ī˜”
ī˜—
0
4
24V
72,1'22581,7
0$,1%2$5'
&1ī˜”ī˜”
72,1'225
81,70$,1
%2$5'
&1ī˜”ī˜•
RED
BLACK
BLACK
BLACK
BLACK
3(S)
1(L1)
2(L2)
ī˜”ī˜”ī˜”ī˜”ī˜”ī˜”ī˜”ī˜”ī˜”ī˜”ī˜”ī˜”ī˜”ī˜”ī˜”ī˜”
ī˜™ī˜›ī˜™ī˜›ī˜™ī˜›ī˜™ī˜›ī˜™ī˜›ī˜™ī˜›ī˜™ī˜›ī˜™ī˜›ī˜™ī˜›ī˜™ī˜›ī˜™ī˜›ī˜™ī˜›ī˜™ī˜›ī˜™ī˜›ī˜™ī˜›ī˜™ī˜›
ī˜™ī˜™ī˜™ī˜™ī˜™ī˜™ī˜™ī˜™ī˜™ī˜™ī˜™ī˜™ī˜™ī˜™ī˜™ī˜™
ī˜›ī˜›ī˜›ī˜›ī˜›ī˜›ī˜›ī˜›ī˜›ī˜›ī˜›ī˜›ī˜›ī˜›ī˜›8 ī˜™ī˜™ī˜™ī˜™ī˜™ī˜™ī˜™ī˜™ī˜™ī˜™ī˜™ī˜™ī˜™ī˜™ī˜™ī˜™
ī˜•ī˜•ī˜•ī˜•ī˜•ī˜•ī˜•ī˜•ī˜•ī˜•ī˜•ī˜•ī˜•ī˜•ī˜•2
ī˜”ī˜”ī˜”ī˜”ī˜”ī˜”ī˜”ī˜”ī˜”ī˜”ī˜”ī˜”ī˜”ī˜”ī˜”ī˜”ī˜”ī˜”ī˜”ī˜”ī˜”ī˜”ī˜”ī˜”ī˜”ī˜”ī˜”ī˜”ī˜”ī˜”ī˜”
L1
L2
&%ī˜”
/ī˜•
/ī˜”
&% &%
L1
L2
&%ī˜•
/ī˜•
/ī˜”
&% &%
RED
BLACK
RED
BLACK
HTR4
7&2ī˜—
7/ī˜—
HTR3
7&2ī˜–
7/ī˜–
HTR1
7&2ī˜”
7/ī˜”
RED
BLACK
HTR2
7&2ī˜•
7/ī˜•
ī˜•ī˜—ī˜•ī˜—ī˜•ī˜—ī˜•ī˜—ī˜•ī˜—ī˜•ī˜—ī˜•ī˜—ī˜•ī˜—
ī˜™ī˜›ī˜™ī˜›ī˜™ī˜›ī˜™ī˜›ī˜™ī˜›ī˜™ī˜›ī˜™ī˜›ī˜™ī˜›ī˜™ī˜›ī˜™ī˜›ī˜™ī˜›ī˜™ī˜›ī˜™ī˜›ī˜™ī˜›ī˜™ī˜›ī˜™ī˜›
POWER A
POWER B POWER C
(green)
Y/G
Y/G
Y/G
Indoor Unit
Installation

Related product manuals