EasyManua.ls Logo

Midea DLFSAAH24XAK - Included Accessories; Wireless Remote and Interface; Display Panel Functionality; Auto Start Functionality

Midea DLFSAAH24XAK
26 pages
Print Icon
To Next Page IconTo Next Page
To Next Page IconTo Next Page
To Previous Page IconTo Previous Page
To Previous Page IconTo Previous Page
Loading...
32801002001 Specifications subject to change without notice. 3
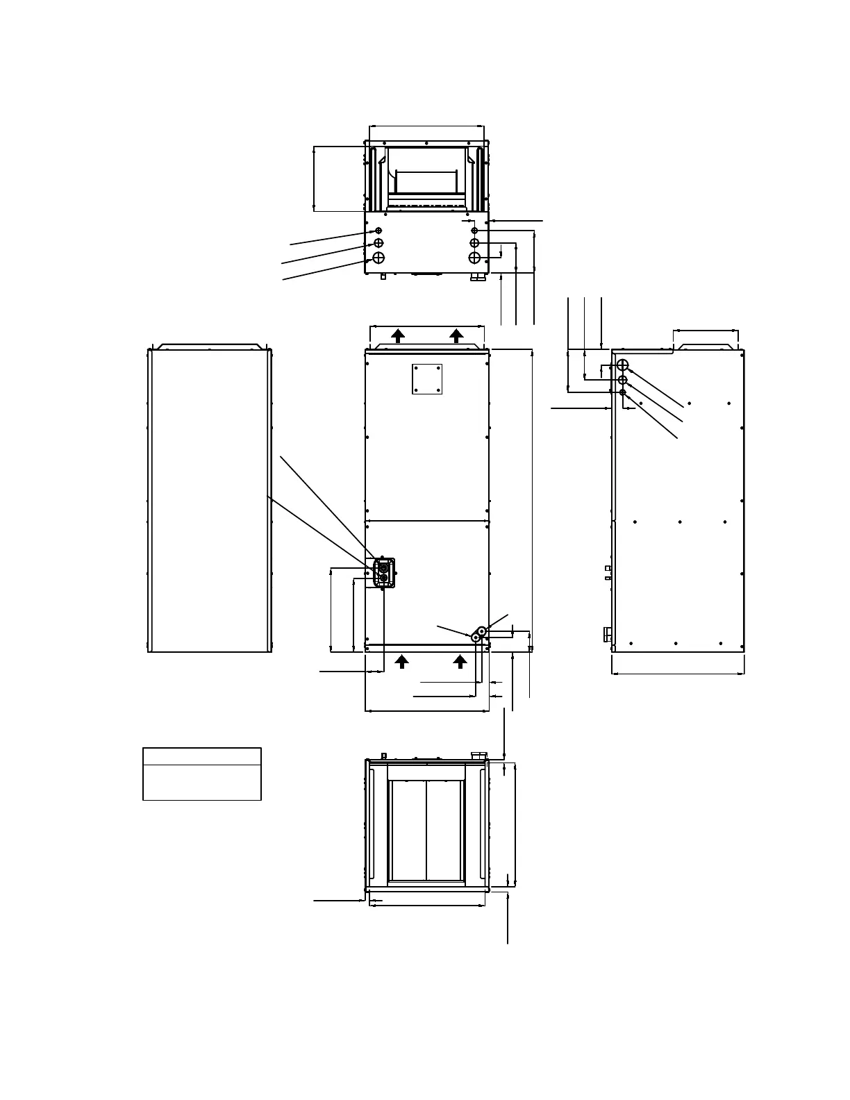
DIMENSIONS
Fig. 4 — Dimensions
"
Right Side ViewRear Side View
Front View
Bottom View
Top View
E 10.3 [262]
D 18.2 [462]
1.2 [30]
2.2 [55]
2.3 [59]
3.3 [84]
11.8 [299]
13.3 [339]
3.0 [75]
2.5 [64]
4.9 [124]
6.8 [174]
1.7 [44]
A HEIGHT 48.1 [1222]
C WIDTH 19.7 [501]
4.8 [121]
2.4 [61]
6.7 [171]
2.2 [57]
D DUCT 18.2 [462]
E DUCT 10.3 [262]
B DEPTH 21.1 [535]
0.8 [21]
0.5 [13]
0.6 [16]
18.4 [466]
19.7 [500]
Air Outlet
Air Inlet
Ø1.7 [Ø43]
Ø1.3 [Ø34]
Ø0.8 [Ø21]
Ø1.3 [Ø34]
Ø1.7 [Ø43]
Ø0.8 [Ø21]
Filter
Coil
Blower
Nominal Filter Size
20 x 16 x 1 inches
(515 x 442 x 25 mm)
Liquid Line Ø3/8 [Ø9.5]
Gas Line Ø5/8 [Ø16]
L2
L1

Other manuals for Midea DLFSAAH24XAK

Related product manuals