EasyManua.ls Logo

Midea DLFSAAH24XAK - Step 3 - Mount Electric Heater (Optional)

Midea DLFSAAH24XAK
26 pages
Print Icon
To Next Page IconTo Next Page
To Next Page IconTo Next Page
To Previous Page IconTo Previous Page
To Previous Page IconTo Previous Page
Loading...
8 Specifications subject to change without notice. 32801002001
11. Reinstall the evaporator cover.
Fig. 17 — Reinstall the Evaporator Cover
12. Reinstall the filter and the filter plate.
Fig. 18 — Reinstall the filter and filter plate
13. Open the lower cover.
14. Open the electronic control box.
15. Connect all the necessary wiring according to the wiring diagram.
16. Connect the lineset.
17. Install the drain lines.
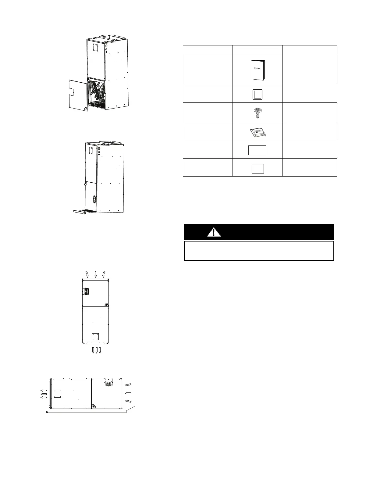
Fig. 19 — Vertical Downflow Installations
Fig. 20 — Horizontal Left Installations
NOTE: For a horizontal left installation, a secondary condensate
pan (field supplied) must be installed (refer to local codes).
Step 3 - Mount Electric Heater (Optional)
Table 5 — Accessories
NOTE: Installation must be performed by an authorized dealer or
specialist. Use recommended PPE when installing the unit.
Specification of electric auxiliary heat modules: 5kW,
10kW, 15kW, 20kW.
If the unit needs to be equipped with the electric auxiliary heat
module, please check the electric auxiliary heat module specification
that is compatible with the unit to avoid unnecessary consequences
caused by improper matching.
INSTALLATION REQUIREMENTS
NOTE: Installation of Auxiliary Electric Heat Module should be
completed before installing the discharge ductwork to insure proper
alignment of the inside support brackets.
Before installation, check the list of electric auxiliary heat modules
and physical objects. After transportation, check whether the electric
heat module is damaged. If any damage is detected, contact the after-
sales personnel immediately.
NOTE: A separate power is required for an Auxiliary Electric
Heater.
Vertical Downow Installations
Horizontal Left Installations
Secondary
Condensate Pan
(check local codes)
NAME SHAPE QUANTITY
Owner’s and
Installation Manual
1
Seal 1
Screw 2
Resilient Cap 1
Electric Auxiliary
Heating Wiring
Diagram
1
Circuit Breaker
Label
1
The electric auxiliary heat module is internally mounted in the air
handler. DO NOT MOUNT IN DUCTWORK!
CAUTION

Other manuals for Midea DLFSAAH24XAK

Related product manuals